**Standout Features:**
- Expansive complex on 0.45 acres with over 11,000 sq ft of buildings
- Includes a four-bedroom period house, a two-bedroom flat, and a former showroom
- Provides off-street parking for up to 20 vehicles
- Beautifully walled private gardens offering seclusion
- Conveniently located near Tiverton's amenities and transport links
- Freehold title with grade II listed elements
**Concerns:**
- Properties require extensive modernization and redevelopment
- Oakdale's cellar has a history of flooding; asbestos present in the cellar ceiling
- Some units have been unoccupied since the 1980s and need significant repairs
---
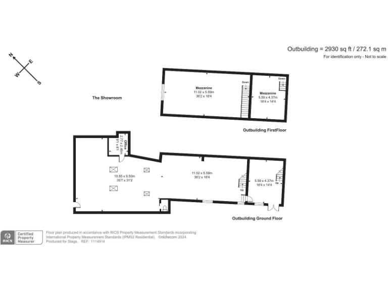
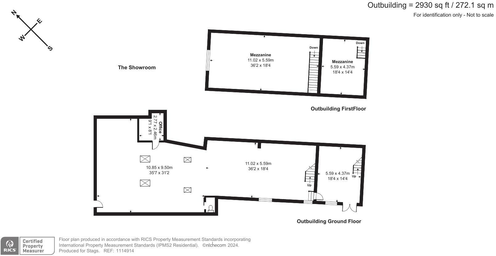
This substantial leisure facility, Oakdale & The Elms, located on Blundells Road in Tiverton, presents a rare opportunity for redevelopment or investment. Spanning 0.45 acres, the site features over 11,000 square feet of residential and commercial spaces, including a four-bedroom attractive period home, a two-bedroom flat, multiple garages, and a former showroom stone building. You will enjoy the safety and privacy guaranteed by the walled gardens, providing a serene setting for relaxation or gatherings.
Though the property is steeped in potential, it currently requires extensive renovation, with parts having stood vacant since the 1980s. Oakdale is generally in basic order but needs modern touches, while major improvements are needed for The Elms and the flat. The complex is conveniently located near Tiverton's vibrant amenities, schools, and excellent transport links, making it ideal for families or investors looking to capitalize on the area's growth. Don’t miss this unique opportunity to reshape this distinctive site into your next dream project!
8 bedroom detached house for sale in Blundells Road, Tiverton, EX16 — £495,000 • 8 bed • 4 bath • 11898 ft²
6 bedroom mixed use property for sale in Blundells Road, Tiverton, Devon, EX16 — £495,000 • 6 bed • 1 bath • 8968 ft²
6 bedroom detached house for sale in Blundells Road, Tiverton, Devon, EX16 — £495,000 • 6 bed • 1 bath • 11998 ft²
Leisure facility for sale in Exceptional Home and Holiday Cottage Business, North Devon, EX1 — £2,600,000 • 1 bed • 1 bath • 3640 ft²
5 bedroom detached house for sale in Bickleigh, Tiverton, EX16 — £700,000 • 5 bed • 2 bath • 3948 ft²
Leisure facility for sale in Holiday Cottage Complex, Huntsham, Tiverton, EX16 — £1,400,000 • 5 bed • 1 bath • 2732 ft²










































































