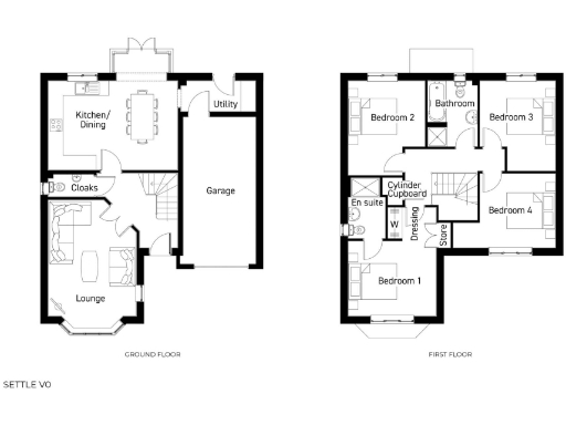
Spacious family home with modern fittings and garden access.
Four double bedrooms including master with en-suite and dressing area
Show-stopping open-plan Symphony kitchen-diner with French doors to garden
Utility room, cloakroom and internal access to integrated garage
Approx 1,336 sq ft — comfortable family-sized accommodation
10-year NHBC warranty; new-build incentives available (plot-specific)
Fast broadband and excellent mobile signal; mains gas heating
Freehold; no flood risk recorded
Data inconsistencies in record (built era / built form) and images illustrative
This four-bedroom detached home at The Hawthornes in Carlton is arranged for family life with a generous, show-stopping open-plan kitchen‑diner that opens onto the rear garden through French doors. The fitted Symphony kitchen, separate utility room and integrated garage give practical everyday space, while the living room bay brings extra light to front rooms.
Upstairs the generously proportioned master bedroom includes a dressing area, Hammonds wardrobes and a private en-suite; three further double bedrooms and a family bathroom with both bath and walk-in shower complete the layout. At about 1,336 sq ft the home offers comfortable room sizes for a growing family and benefits from fast broadband, excellent mobile signal and mains gas central heating.
This is a new-build offering with a 10-year NHBC warranty and a range of developer incentives advertised (part-exchange, deposit boost and flooring). Incentives are plot-specific and availability varies; check which offers apply to this plot before committing. There is no flood risk recorded and the property is freehold.
A note of caution: some dataset fields conflict (for example, build era and built form entries). Also images may be illustrative rather than of this exact plot. Prospective buyers should confirm final specification, measurements and incentive details with the developer before purchase.
4 bedroom detached house for sale in Station Road,
Carlton,
Selby,
North Yorkshire,
DN14 9NS, DN14 — £425,000 • 4 bed • 2 bath • 1390 ft²
4 bedroom detached house for sale in Station Road,
Carlton,
Selby,
North Yorkshire,
DN14 9NS, DN14 — £455,000 • 4 bed • 3 bath • 1533 ft²
4 bedroom detached house for sale in Station Road,
Carlton,
Selby,
North Yorkshire,
DN14 9NS, DN14 — £380,000 • 4 bed • 2 bath • 1249 ft²
4 bedroom detached house for sale in Station Road,
Carlton,
Selby,
North Yorkshire,
DN14 9NS, DN14 — £360,000 • 4 bed • 2 bath • 1160 ft²
4 bedroom detached house for sale in Main Street,
Carlton,
Leeds,
WF3 3RW, WF3 — £450,000 • 4 bed • 1 bath • 972 ft²
5 bedroom detached house for sale in Main Street,
Carlton,
Leeds,
WF3 3RW, WF3 — £500,000 • 5 bed • 1 bath • 1392 ft²










































