**Standout Features:**
- Newly refurbished three-bedroom townhouse
- Modern kitchen with integrated appliances and marble backsplash
- Private rear garden with patio
- Off-street parking for 2 cars
- Chain-free sale
- Convenient location near Elstree & Borehamwood Station
**Summary:**
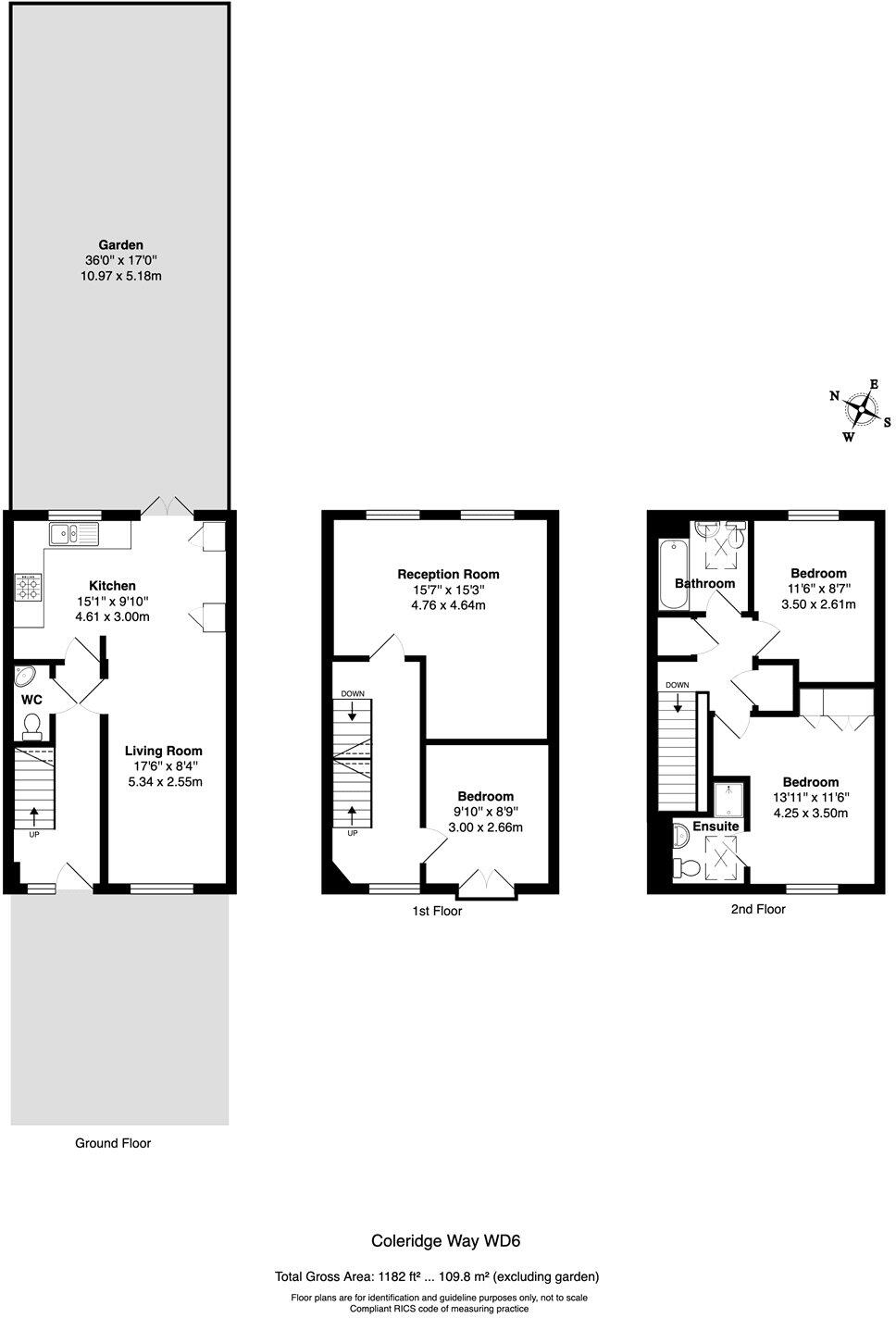
Discover this beautifully newly refurbished three-bedroom townhouse in the vibrant locale of Borehamwood, Hertfordshire. The property boasts an inviting open-plan layout, featuring a stylish modern kitchen equipped with integrated appliances and striking black cabinetry, seamlessly flowing into a cozy reception area. Large patio doors lead to a low-maintenance, private garden, perfect for outdoor relaxation.
Set across three floors, this home includes two generously sized bedrooms alongside a second-floor suite, providing ample space for families or those looking for a home office. With two contemporary bathrooms, stylish finishes, and an average-sized footprint of 1,182 square feet, it offers comfort without sacrificing modernity. Enjoy the added benefit of off-street parking for two cars and the peace of low crime in the area. Plus, being only a short walk from Elstree & Borehamwood Station, commuting is a breeze.
While the property's council tax band is higher than average, its prime location and modern amenities make it a valuable investment for first-time buyers or families seeking a blend of comfort and convenience. Don’t miss your chance to secure this exceptional home—come see its potential today!
3 bedroom end of terrace house for sale in Coleridge Way, Borehamwood, WD6 — £595,000 • 3 bed • 2 bath • 1150 ft²
3 bedroom end of terrace house for sale in Coleridge Way, Borehamwood, WD6 — £639,950 • 3 bed • 2 bath • 1206 ft²
3 bedroom semi-detached house for sale in Nicholas Hawksmoor Drive, Borehamwood, WD6 — £650,000 • 3 bed • 2 bath • 1076 ft²
2 bedroom end of terrace house for sale in Balmoral Drive, Borehamwood, WD6 — £500,000 • 2 bed • 2 bath • 505 ft²
3 bedroom semi-detached house for sale in Keats Close, Borehamwood, WD6 — £600,000 • 3 bed • 2 bath • 1033 ft²
2 bedroom end of terrace house for sale in Ranskill Road, Borehamwood, WD6 — £425,000 • 2 bed • 1 bath • 700 ft²






































































