Ideal first home near Reading station with private garden and period features.
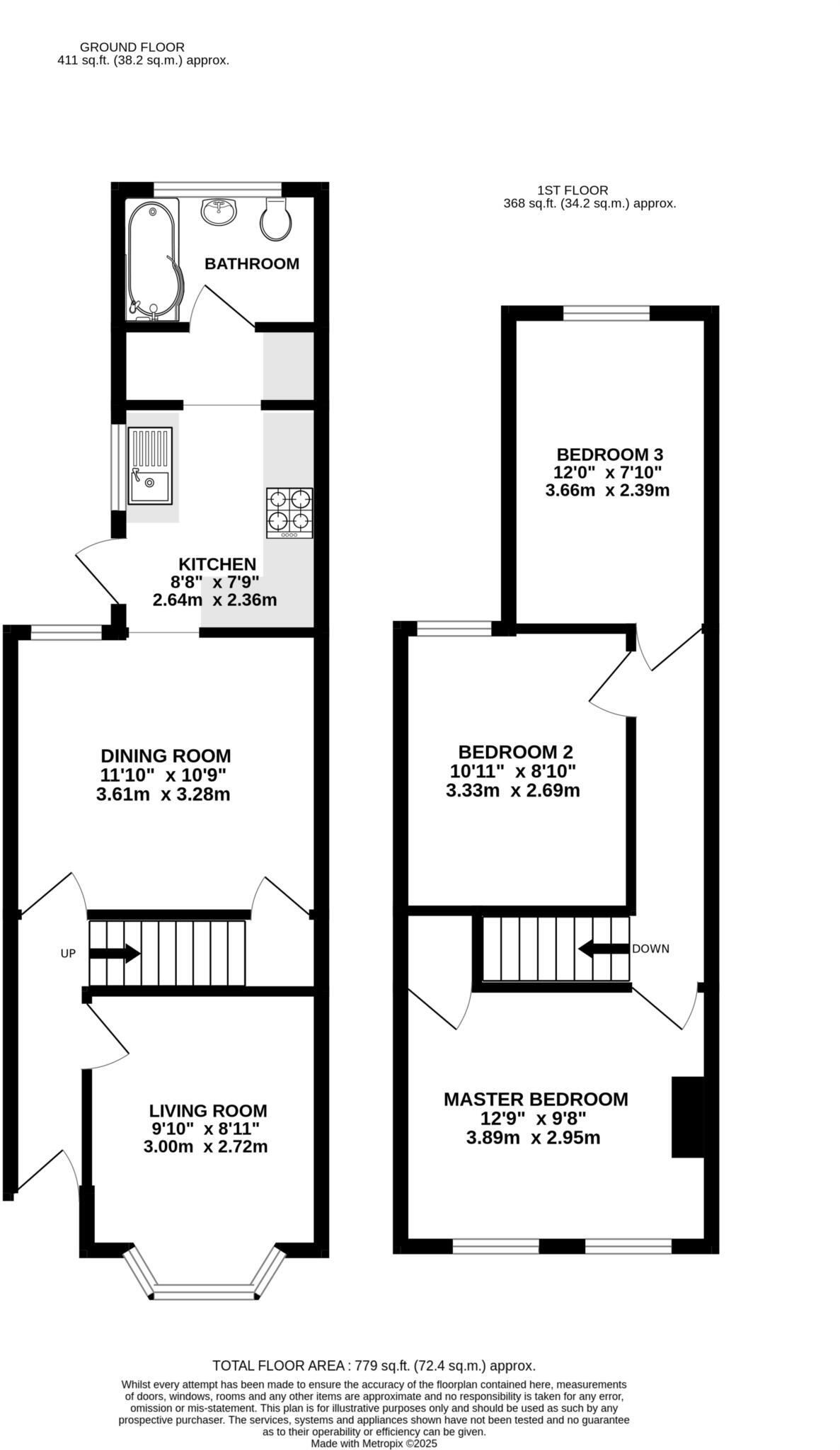
Three bedroom Victorian mid-terrace, bay-fronted sitting room
Private rear garden, mainly lawn, enclosed by timber fencing
Walking distance to Reading mainline station and local amenities
Approx 872 sq ft; rooms small-to-average for inner-suburban terrace
Solid brick walls with no assumed insulation; retrofit likely needed
Small plot and single bathroom; space constrained for larger families
Medium flood risk in area — insurance and mitigation advised
Freehold tenure; gas central heating and double glazing present
This three-bedroom Victorian mid-terrace offers a compact, characterful home close to Caversham and Reading centres. The bay-fronted sitting room and separate dining room give traditional room flow, while the fitted kitchen and downstairs bathroom provide everyday practicality for a first home or buy-to-let.
The property is freehold with gas central heating, double glazing and a private rear garden. Rooms are small-to-average, with a 12ft master bedroom and an overall footprint of about 872 sq ft — manageable for those seeking a modest, low-maintenance family starter. On-street parking and quick walking access to Reading mainline station are strong location advantages.
Buyers should note some material limitations: the walls are original solid brick (no insulation assumed), the plot is small, and there is a medium flood risk in the area. The single bathroom and typical Victorian room proportions mean space is constrained; some updating or insulating work could improve comfort and energy efficiency.
For first-time buyers the house represents good value for a popular commuter postcode, with scope to personalise and add value through targeted improvements. Investors will find straightforward rental potential given the proximity to Reading station and local amenities, though yield calculations should factor in any refurbishment and flood-risk mitigation costs.
3 bedroom terraced house for sale in Mill Road, Caversham, RG4 — £350,000 • 3 bed • 2 bath • 936 ft²
3 bedroom terraced house for sale in Star Road, Caversham, RG4 — £500,000 • 3 bed • 1 bath • 1119 ft²
3 bedroom terraced house for sale in Briants Avenue, Caversham, Reading, RG4 — £369,500 • 3 bed • 2 bath • 877 ft²
3 bedroom terraced house for sale in Surrey Road, Reading, Berkshire, RG2 0EU, RG2 — £340,000 • 3 bed • 1 bath • 800 ft²
3 bedroom terraced house for sale in Kings Road, Caversham, Reading, Berkshire, RG4 — £335,000 • 3 bed • 1 bath • 845 ft²
3 bedroom end of terrace house for sale in Westfield Road, Caversham, RG4 — £420,000 • 3 bed • 1 bath • 1063 ft²










































































































































































