Well-presented three-bedroom detached home with modern kitchen and sun room, ideal for family life..
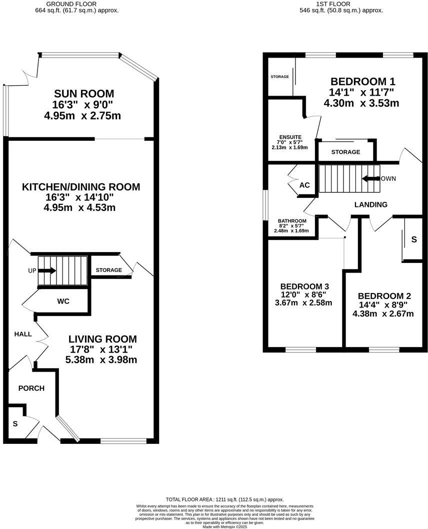
Three double bedrooms including master with en-suite
Detached house set back on private driveway, off-street parking
Modern Howdens kitchen with island and integrated appliances
Sun room/conservatory opening to enclosed lawn and patio
Small/modest rear garden and timber storage shed
EPC Band C; double glazing install dates unknown
Built 1976–1982 — some systems or finishes may need updating
Fast broadband, very low crime, good nearby schools
Tucked away on a private driveway in a comfortable Kettering suburb, this well-presented three-bedroom detached house suits families seeking light, flexible living. The ground floor offers a generous living room, a recently upgraded Howdens kitchen with island and integrated appliances, and a sun room that opens onto an enclosed rear garden — ideal for children and entertaining.
Upstairs are three double bedrooms including a master with contemporary en-suite, plus a family bathroom. Practical details such as built-in bedroom storage, an entrance porch with cupboard, off-street parking and a timber garden shed add day-to-day convenience. Broadband speeds are fast and the area has very low crime and good local schools nearby.
Considerations: the plot is modest in size and the property dates from the late 1970s/early 1980s, so some buyers may wish to update cosmetic elements or confirm service ages. The EPC is band C and double glazing install dates are unknown. Council Tax Band D applies.
3 bedroom detached house for sale in Deeble Road, Kettering, Northamptonshire, NN15 — £275,000 • 3 bed • 2 bath • 1017 ft²
3 bedroom house for sale in Malvern Close., Kettering, NN16 — £270,000 • 3 bed • 1 bath • 746 ft²
3 bedroom detached house for sale in Bramshill Avenue, Kettering, NN16 — £270,000 • 3 bed • 2 bath • 918 ft²
4 bedroom detached house for sale in Berwick Way, Kettering, Northamptonshire, NN15 — £410,000 • 4 bed • 2 bath • 742 ft²
3 bedroom detached house for sale in Emerson Court, Kettering, NN15 — £320,000 • 3 bed • 2 bath • 704 ft²
3 bedroom detached house for sale in Malvern Close, Kettering NN16 — £270,000 • 3 bed • 1 bath • 662 ft²






















































































