Ready-made low-maintenance retirement living close to village shops and countryside.
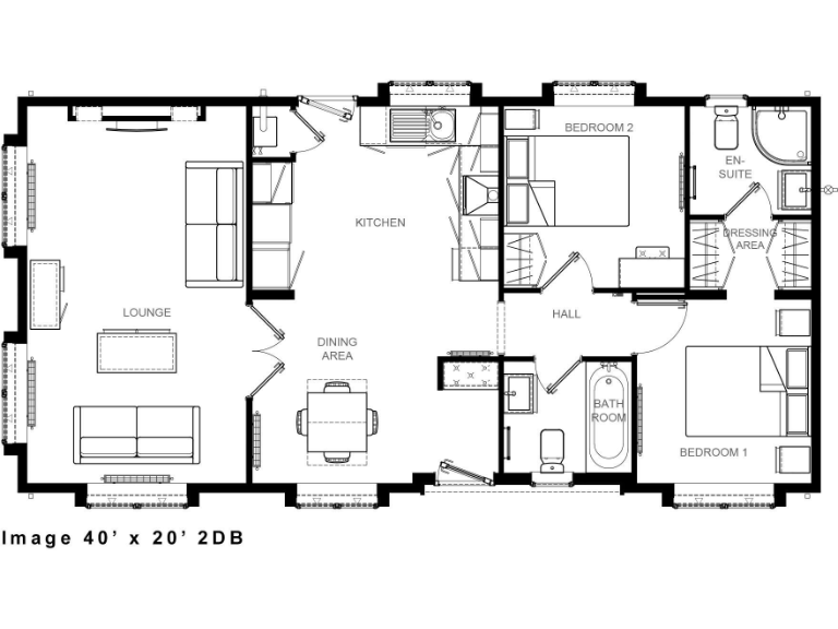
Brand-new, fully furnished two-bedroom Omar Image (40'x20')
This newly built, fully furnished two-bedroom park home sits on a small residential development in Barlestone, offering easy, low-maintenance living for the over-50s. The Omar Image (40'x20') layout provides two double bedrooms, two bathrooms, a lounge with large windows and fireplace, and a fitted kitchen with integrated appliances — ready to move into. Part-exchange is available for a streamlined sale and the home is pet friendly subject to park rules.
The park is a quiet, family-run site of 16 homes set beside a conservation area with ponds and walking routes. Mains utilities are used with metered billing, and electric gates are planned to improve security. Local village facilities — shops, pubs, dentist and post office — are within walking distance, while Market Bosworth and Fosse Park are short drives for wider shopping and services.
Important practical points: this is a virtual freehold park home (the building is purchased, the land is leased) and such homes are typically not mortgageable — seek legal advice if needed. Annual ground rent is £2,352 (noted as high) and site fees are currently £196 per month. Council tax is low (Band A). The park admits one pet per home at the owner’s discretion and enforces age-restriction rules for residents.
Overall this property will suit downsizers seeking a ready-made, maintenance-light retirement base with village access and countryside walks nearby. Buyers should factor in ongoing pitch and ground rent costs and check park rules and the Mobile Homes Act 2013 implications before committing.
2 bedroom park home for sale in Barlestone, Warwickshire, CV13 — £220,000 • 2 bed • 2 bath • 720 ft²
2 bedroom park home for sale in Swadlincote, Derbyshire, DE12 — £235,000 • 2 bed • 2 bath • 800 ft²
2 bedroom park home for sale in Crofters Vale Park, Main Street, Barlestone, Warwickshire, CV13 — £219,995 • 2 bed • 1 bath
2 bedroom park home for sale in Crofters Vale Park, Main Street, Barlestone, Warwickshire, CV13 — £240,000 • 2 bed • 1 bath • 653 ft²
2 bedroom park home for sale in Crofters Vale Park, Main Street, Barlestone, Warwickshire, CV13 — £220,000 • 2 bed • 1 bath • 401 ft²
2 bedroom park home for sale in Swadlincote, Derbyshire, DE12 — £235,000 • 2 bed • 2 bath






















































