Large plot, planning permission and refurbishment potential close to Barton On Sea seafront..
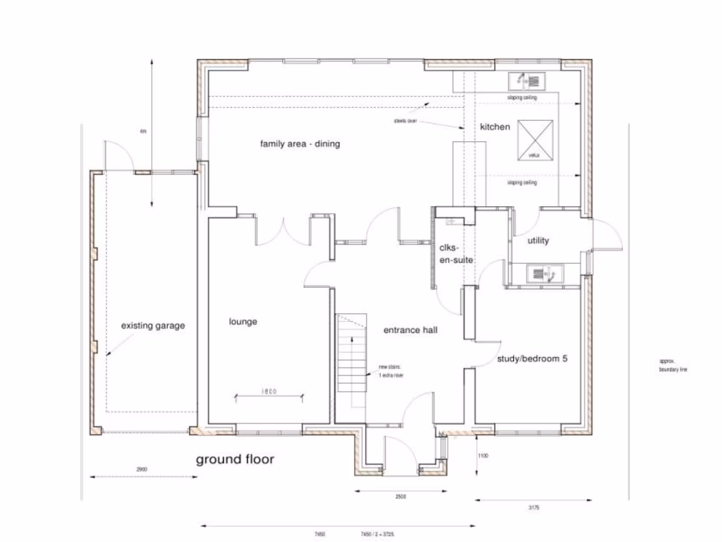
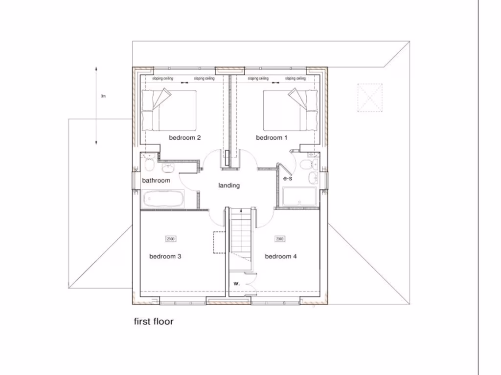
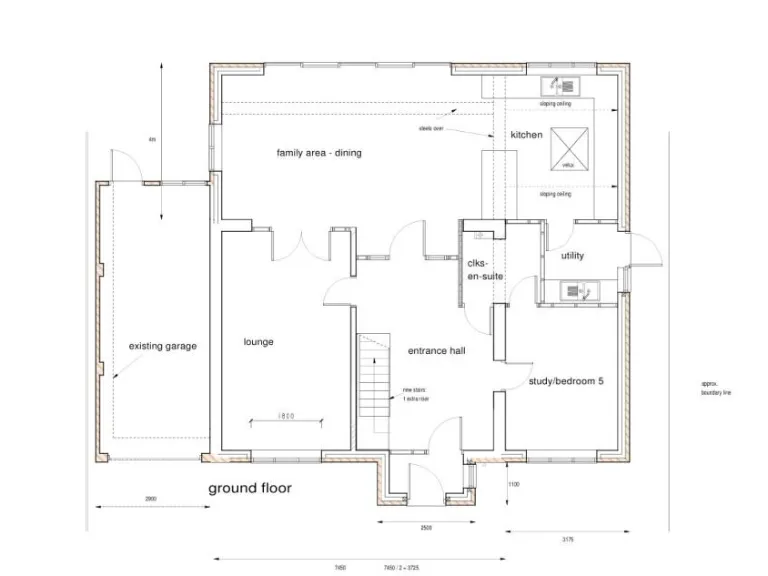
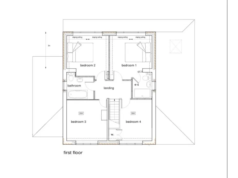
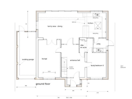
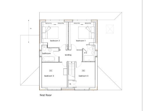
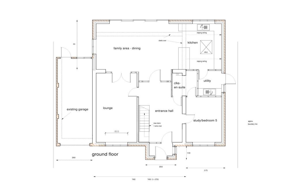
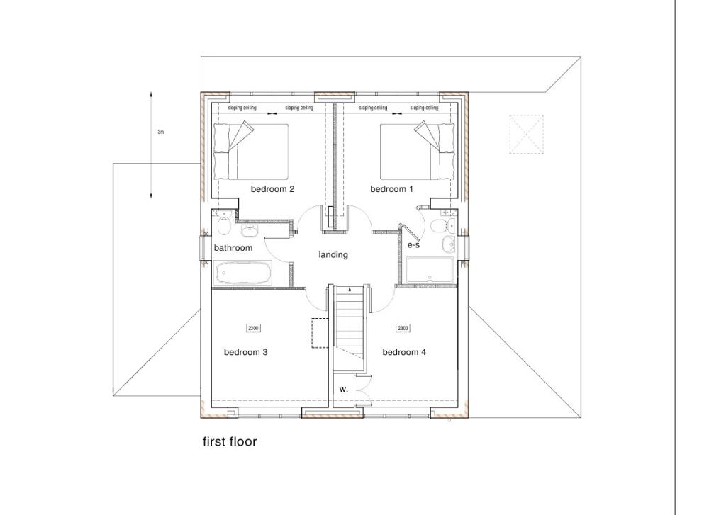
- Planning permission granted for a large extension (NFDC ref 25/10006)
- Large south-facing garden on a substantial plot
- Detached brick house with driveway and single garage
- Property not currently habitable; extensive refurbishment needed
- Essential fittings missing; toilet, kitchen sink, cooker required
- EPC rating G; likely need new heating/insulation works
- Chain free freehold sale; close to seafront and local amenities
- Moderate council tax, excellent mobile and fast broadband
A rare seafront-adjacent project on a large south-facing plot in Barton On Sea. The detached mid-century house requires significant refurbishment and is currently not habitable, but planning permission (NFDC ref 25/10006) is granted for a substantial extension — creating scope for a spacious modern family home or a high-return investment.
Internally the layout is traditional: entrance hall, living room and kitchen/dining on the ground floor, with three bedrooms and a bathroom upstairs. Essential sanitary and cooking fittings are missing; to make the property mortgageable the toilet, kitchen sink and a cooking facility need reinstating. The EPC is G, so full updating of services, insulation and finishes will be required.
Outside the property sits on a large, mainly lawned plot with a south-facing rear garden, driveway and single garage — ideal for expansion or landscaping to create coastal outdoor living. Sold freehold and chain free, the location is close to the seafront and local amenities, with good broadband and mobile signal and very low local crime.
This is a clear fixer-upper: suitable for builders, developers or buyers wanting to create a bespoke home near the sea. The planning permission removes a major planning hurdle, but the project will require budget and project management for full renovation, heating and energy upgrades, and bringing the property up to modern standards.
3 bedroom detached house for sale in Carlton Avenue, Barton on Sea, New Milton, Hampshire, BH25 — £475,000 • 3 bed • 1 bath • 849 ft²
4 bedroom detached house for sale in Dilly Lane, Barton On Sea, Hampshire, BH25 — £700,000 • 4 bed • 1 bath • 1829 ft²
2 bedroom bungalow for sale in Barton Drive, Barton On Sea, Hampshire, BH25 — £425,000 • 2 bed • 1 bath • 802 ft²
4 bedroom detached house for sale in Marine Drive West, Barton on Sea, New Milton, Hampshire, BH25 — £1,100,000 • 4 bed • 1 bath • 1866 ft²
3 bedroom bungalow for sale in Wavendon Avenue, Barton On Sea, Hampshire, BH25 — £425,000 • 3 bed • 1 bath • 1063 ft²
3 bedroom detached house for sale in Beach Avenue, Barton on Sea, New Milton, Hampshire, BH25 — £825,000 • 3 bed • 2 bath • 1727 ft²


























































