Compact, low-maintenance plot close to schools and local amenities, perfect for new buyers.
New-build two-bedroom semi-detached with private garden and off-street parking
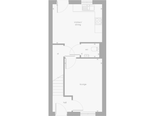
This two-bedroom semi sits on a new-build estate in Areley Common, offering a compact, well-planned layout ideal for first-time buyers. The open-plan kitchen/diner flows to a private garden, and the 14ft lounge gives a comfortable living area for everyday family life or entertaining.
The principal bedroom benefits from an en-suite shower, while bedroom two is a double with built-in storage. A downstairs WC and an upstairs family bathroom add convenience. Off-street parking is provided and the plot is described as a decent size for a suburban development.
Practical running costs are competitive for a new-build: freehold tenure, an annual service charge of £237.86, and a reservation fee of £500. Broadband and local amenities are average, mobile signal is excellent, and the area has average crime and deprivation levels.
Considerations: the internal floor area is modest (around 622 sq ft), so storage and living space will be tighter than larger family homes. The property is part of a development with standard new-home finishes — buyers seeking period character or larger rooms should note the compact scale. Council tax band is to be confirmed.
3 bedroom semi-detached house for sale in Areley Common,
Stourport-on-Severn,
DY13 0JU
, DY13 — £299,950 • 3 bed • 1 bath
3 bedroom detached house for sale in Areley Common,
Stourport-on-Severn,
DY13 0JU
, DY13 — £330,000 • 3 bed • 1 bath • 701 ft²
4 bedroom detached house for sale in Areley Common,
Stourport-on-Severn,
DY13 0JU
, DY13 — £439,950 • 4 bed • 1 bath • 877 ft²
2 bedroom mews property for sale in Areley Common,
Stourport-on-Severn,
DY13 0JU
, DY13 — £245,000 • 2 bed • 1 bath • 623 ft²
3 bedroom semi-detached house for sale in Areley Common,
Stourport-on-Severn,
DY13 0JU
, DY13 — £305,000 • 3 bed • 1 bath
3 bedroom detached house for sale in Areley Common,
Stourport-on-Severn,
DY13 0JU
, DY13 — £335,000 • 3 bed • 1 bath • 618 ft²


















































