**Standout Features:**
- Fifth-floor apartment in a central urban area.
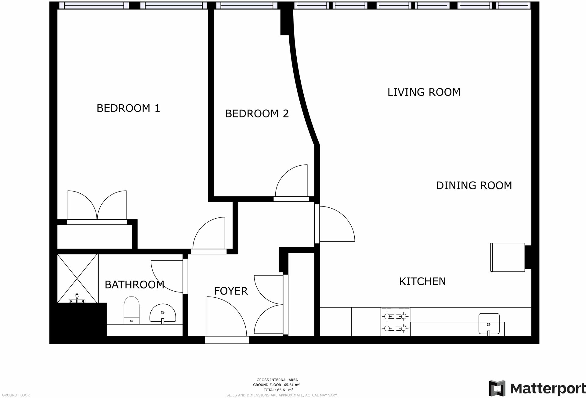
- Open-plan lounge, kitchen, and dining area.
- Two medium-sized bedrooms.
- Modern shower room equipped with a heated towel rail.
- Excellent mobile signal and fast broadband speeds.
- Secure Sale auction process starting at £100,000.
**Potential Concerns:**
- High crime rate in the area.
- Higher-than-average service charge of £2039.
- Construction dating back to 1950-66 with unknown insulation status.
**Summary:**
Discover urban living at its finest in this fifth-floor apartment located in a thriving city center. Ideal for investors or first-time buyers, this cozy retreat boasts two well-lit bedrooms and a modern open-plan lounge and kitchen diner, perfect for contemporary living. With its sleek kitchen featuring essential appliances and a stylish shower room, this property is designed for comfort and convenience.
Enjoy the benefits of living in a cosmopolitan neighborhood surrounded by excellent amenities, including schools with outstanding ratings, public transport, and diverse dining options right at your doorstep. While the area has a high crime rate and the property features older construction methods, its competitive auction price of £100,000 and rental potential make it an attractive opportunity. Don't miss out—act fast to secure your bid in this transparent online auction process!
2 bedroom apartment for sale in Metropolitan Apartments, 20 Lee Circle, Leicester, Leicestershire, LE1 3RF, LE1 — £100,000 • 2 bed • 1 bath • 668 ft²
2 bedroom apartment for sale in 33- 37 Belvoir Street, Leicester, Leicestershire, LE1 6SL, LE1 — £65,000 • 2 bed • 1 bath • 539 ft²
1 bedroom apartment for sale in 47 Rutland Street, Leicester, Leicestershire, LE1 1SS, LE1 — £45,000 • 1 bed • 1 bath • 388 ft²
2 bedroom flat for sale in Belvoir House, 33-37 Belvoir Street, LE1 — £65,000 • 2 bed • 1 bath • 463 ft²
2 bedroom apartment for sale in Lee Street, Leicester, Leicester, LE1 — £60,000 • 2 bed • 1 bath • 518 ft²
2 bedroom apartment for sale in Crecy Court, Lee Circle, Leicester, LE1 — £115,000 • 2 bed • 1 bath • 412 ft²










































