Consented development with conversion upside for hands-on investors.
Freehold commercial with vacant possession
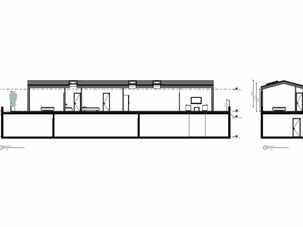
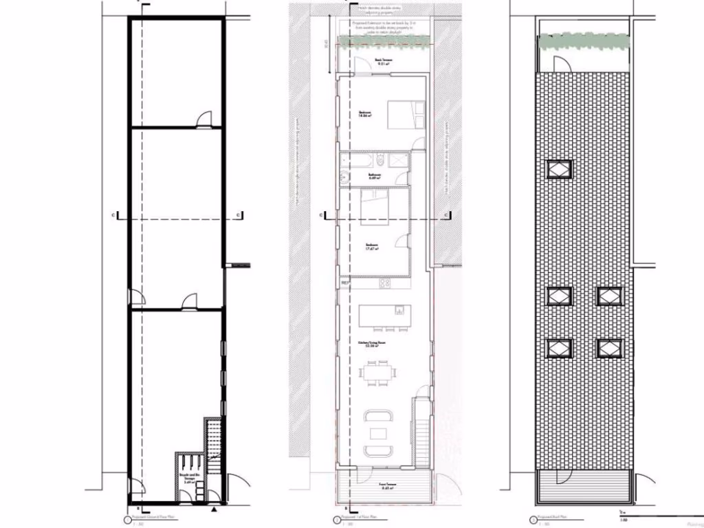
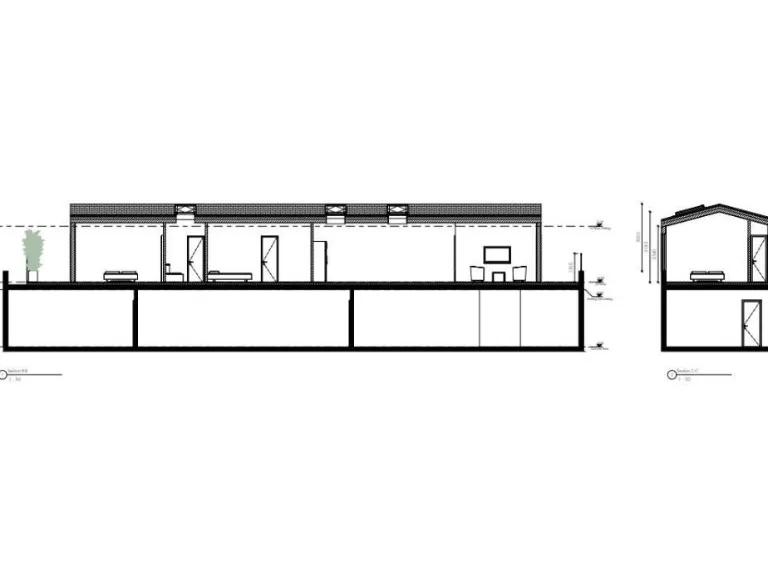
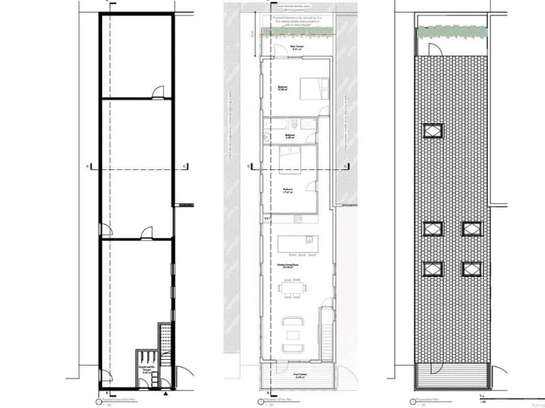
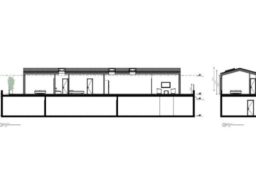
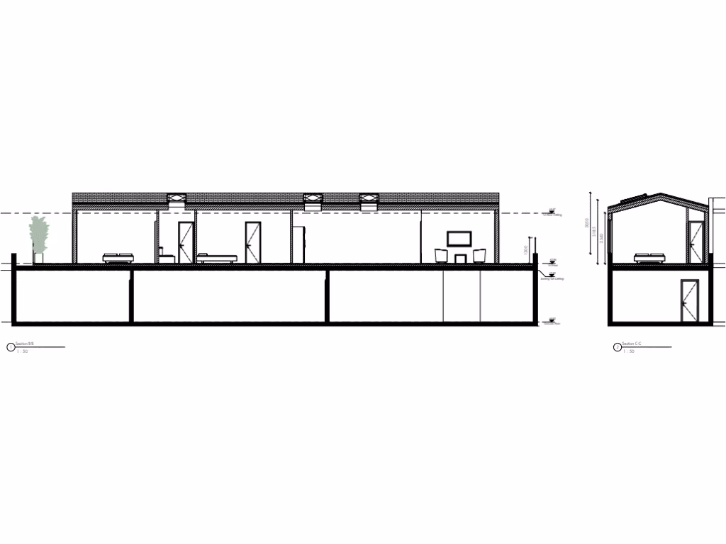
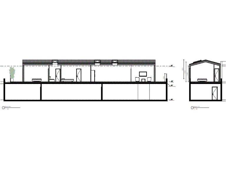
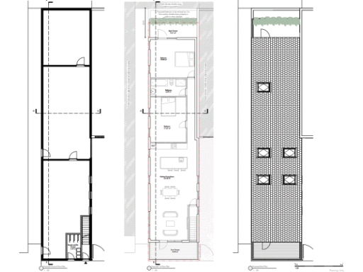
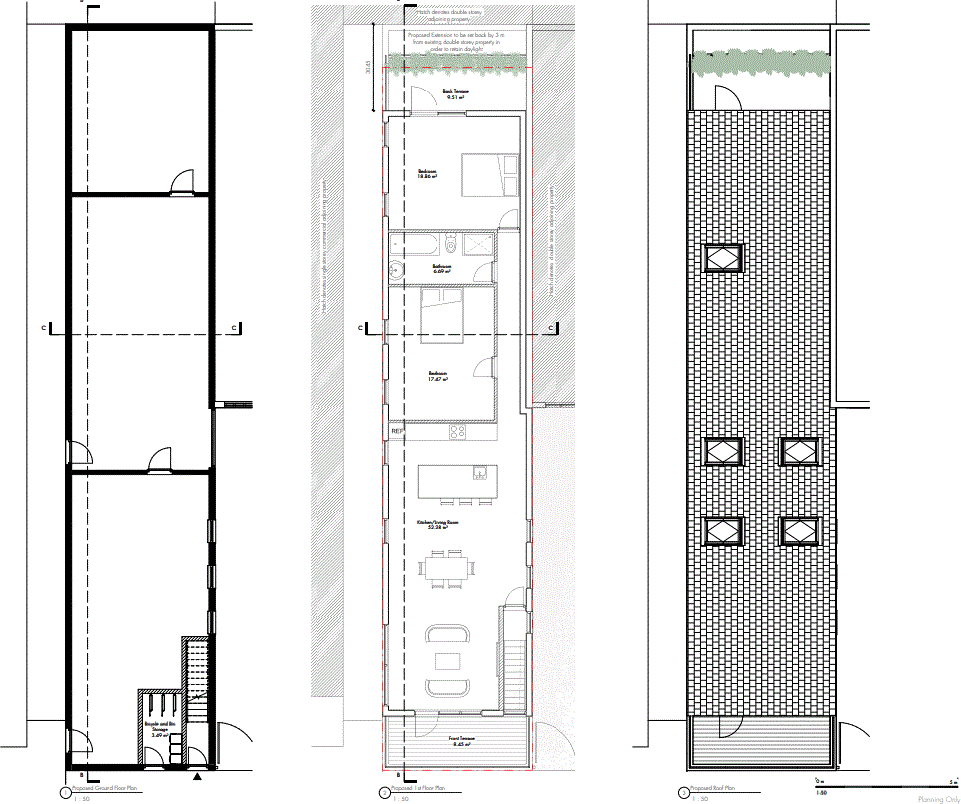
An opportunity for an investor to acquire a freehold commercial unit with consented development on Chatham High Street. The property extends to 1,350 sqft and currently houses a spa with pool, sauna and ancillary rooms; it will be sold with vacant possession and offers immediate scope for conversion or alternative commercial use.
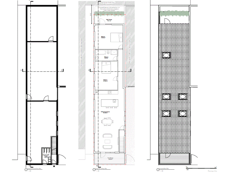
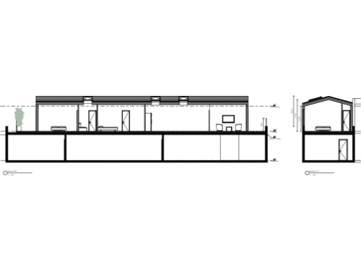
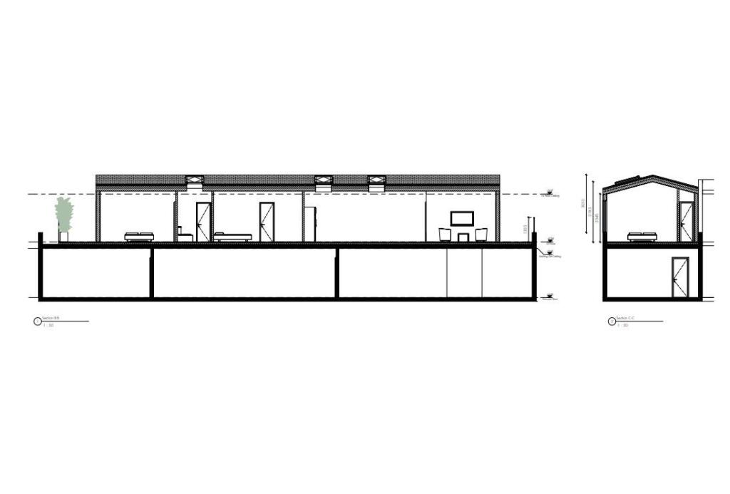
Planning permission (MC/23/1510) is granted for a single-storey roof extension to create one self-contained two-bedroom flat, providing a clear route to add residential value above the existing commercial space. The building’s modern-industrial aesthetic and generous internal footprint suit a variety of uses or a redevelopment-and-let strategy.
Buyers should note material constraints: the site sits in a high flood-risk zone and an area with very high recorded crime and relative deprivation, which may affect occupancy, insurance and rental levels. The plot is small and linear in layout, and some refurbishment or structural adaptation will be required to complete the permitted extension and to repurpose spa areas.
Priced to reflect these issues and offered freehold, the asset suits a hands-on investor or developer prepared to manage flood mitigation, security measures and fit-out. With fast broadband and excellent mobile signal, plus proximity to the Pentagon shopping centre and local transport, the property has practical advantages for mixed-use repositioning.
Residential development for sale in High Street, Chatham, Kent, ME4 4DS, ME4 — £950,000 • 5 bed • 2 bath • 4896 ft²
Commercial development for sale in 125-127 High Street, Chatham, Kent, ME4 4DH, ME4 — £1,400,000 • 1 bed • 1 bath • 5135 ft²
High street retail property for sale in Unit 215-217, 215 - 217 High Street, Chatham, ME4 — £465,000 • 1 bed • 1 bath • 2352 ft²
Land for sale in High Street / Rhode Street, Chatham,, ME4 — £3,000,000 • 1 bed • 1 bath • 1400 ft²
High street retail property for sale in 284 High Street, Chatham, Kent, ME4 4BP, ME4 — £290,000 • 1 bed • 1 bath • 3331 ft²
Out-of-town retail property for sale in 272-274 Luton Road, Chatham, Kent, ME4 — £650,000 • 1 bed • 1 bath • 3348 ft²






































































