Affordable seaside starter with garden and parking, near village amenities..
- Two double bedrooms with sea glimpses
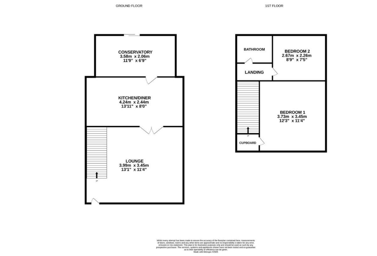
- Approximately 542 sq ft; compact internal size
- Private driveway for off-street parking
- Small, neatly kept rear garden with shed
- Freehold tenure; two-storey terraced layout
- Electric storage heaters; potentially higher running costs
- Cavity walls with partial insulation (assumed)
- Located in a deprived, remoter village area
A compact two-bedroom mid-terrace house in a coastal village setting, offered freehold and ready to move into. The property measures about 542 sq ft across two storeys and includes a bright lounge, separate conservatory, one family bathroom and a modern kitchen.
Outdoor space is a genuine plus: a small, well-kept rear garden with shed and a private driveway for off-street parking. Sea glimpses are reported from the upper rooms, adding coastal appeal without flood risk. Council tax is very low, and local crime levels are described as low.
Practical considerations: the home relies on electric storage heaters and has cavity walls with assumed partial insulation, so running costs and heating performance may be higher than gas-heated homes. The surrounding area is classed as a deprived, remoter community with limited local services, and broadband and mobile signals are only average. Nearby schools include Good-rated primary options, though one local school is listed as Requires Improvement.
This property suits first-time buyers or downsizers seeking an affordable coastal foothold with parking and a garden. It also offers straightforward potential for improvement (insulation, heating upgrades) for buyers willing to invest in energy efficiency and comfort.
2 bedroom terraced house for sale in Ostend Road, Walcott, NR12 — £170,000 • 2 bed • 1 bath • 624 ft²
2 bedroom bungalow for sale in Horizon Views, Walcott, Norwich, Norfolk, NR12 — £190,000 • 2 bed • 1 bath • 689 ft²
2 bedroom terraced house for sale in Horsey Corner, Horsey, NR29 — £145,000 • 2 bed • 1 bath • 624 ft²
2 bedroom detached bungalow for sale in Sea View Estate, Bacton, NR12 — £180,000 • 2 bed • 1 bath • 883 ft²
2 bedroom terraced house for sale in Ostend Road, Walcott, Norwich, NR12 — £170,000 • 2 bed • 1 bath • 543 ft²
2 bedroom terraced house for sale in Gallus Close, Northrepps, NR27 — £260,000 • 2 bed • 2 bath • 850 ft²


































































