Character-filled home near Richmond Park and top local schools.
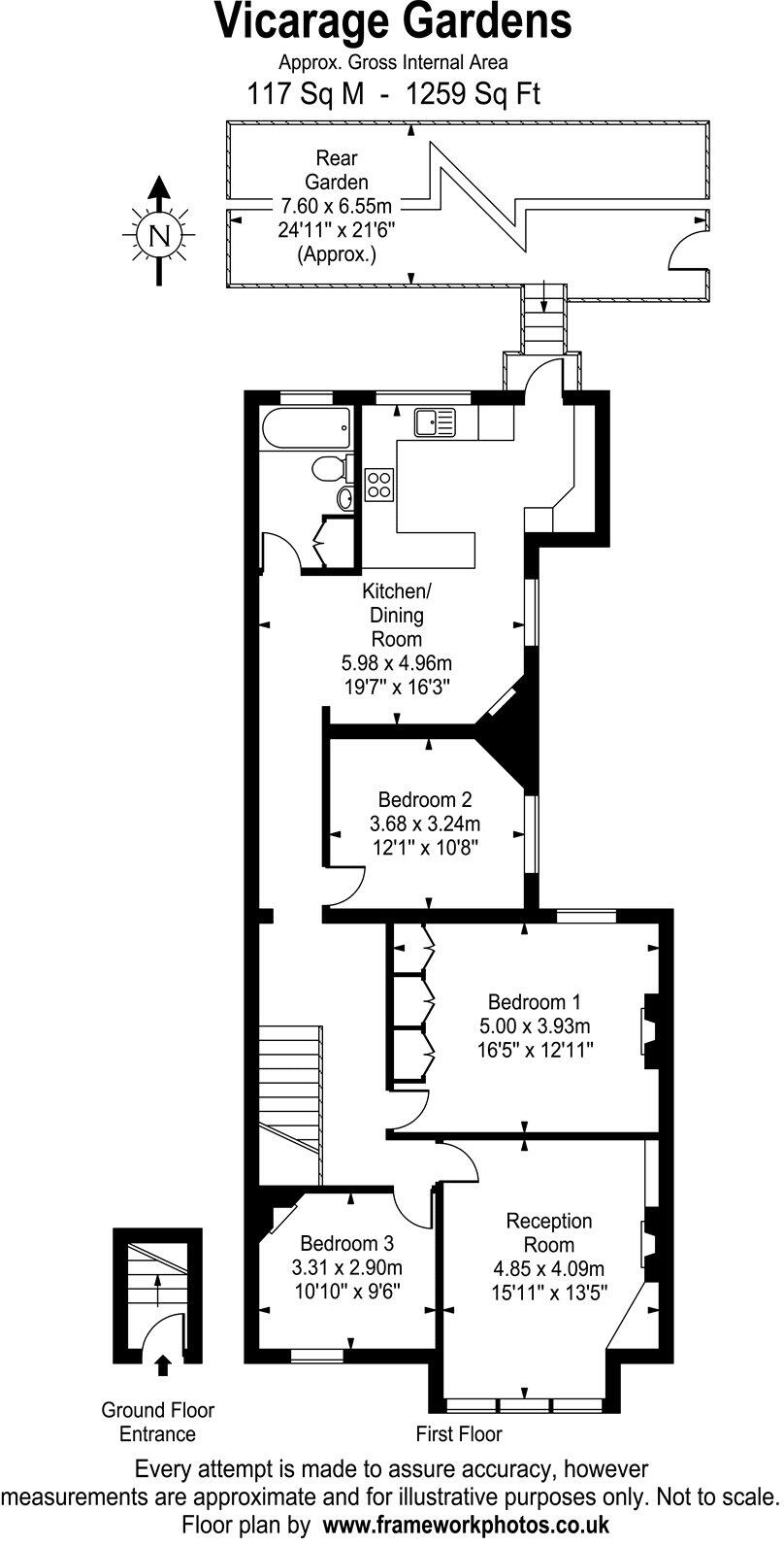
Large 1,259 sq ft three-bedroom maisonette with high ceilings
A rare larger-than-average three-bedroom maisonette set over the first floor of an attractive period building in East Sheen. High ceilings, generous room proportions and original fireplaces create classic character while recently installed double-glazed windows improve comfort. The property includes a private rear garden accessed by an external staircase and a driveway to the front.
Positioned for family life, the home sits close to Richmond Park and several highly regarded schools including East Sheen Primary, Sheen Mount and Ibstock Place. Mortlake station and the local shops, cafés and restaurants are within easy reach, and the area benefits from low crime, excellent mobile signal and fast broadband.
Practical buyers should note the apartment needs renovation in places: the layout and size present strong scope to modernise and increase value, but some works will be required. The property is offered chain free with a share of freehold and approximately 85 years remaining on the lease.
Other facts: built before 1900 in solid brick construction (likely no cavity insulation), mains gas heating with boiler and radiators, single main bathroom, and moderate council tax. No flood risk.
2 bedroom maisonette for sale in Ashleigh Road, East Sheen, SW14 — £625,000 • 2 bed • 1 bath • 656 ft²
2 bedroom maisonette for sale in Kingsway, East Sheen, SW14 — £620,000 • 2 bed • 1 bath • 732 ft²
3 bedroom apartment for sale in Sheen Road, Richmond, Surrey, TW10 — £1,250,000 • 3 bed • 1 bath • 1519 ft²
2 bedroom apartment for sale in Upper Richmond Road West, East Sheen, SW14 — £575,000 • 2 bed • 1 bath • 828 ft²
Semi-detached house for sale in Gilpin Avenue, London, SW14 — £1,495,000 • 1 bed • 1 bath • 1539 ft²
2 bedroom flat for sale in Leinster Avenue, East Sheen, SW14 — £600,000 • 2 bed • 1 bath • 717 ft²










































