Spacious period family house with gardens and character on village edge.
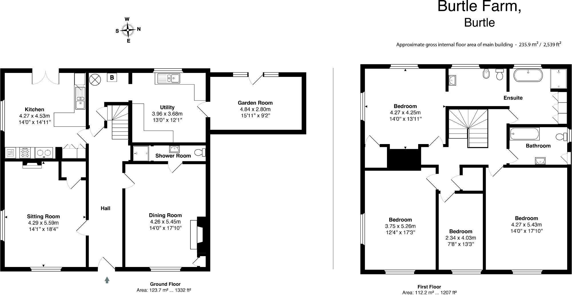
4 bedrooms and 3 bathrooms in approximately 2,539 sq ft
Grade II listed — restrictions and potential permission delays
Mature, enclosed front and rear gardens with private terrace
Off-street parking; approached via shared driveway and cattle grid
Oil-fired heating; Rayburn in kitchen; shared modern digester
Slow broadband and average mobile signal in this remoter location
Council Tax Band G — relatively high running costs
Large, period reception rooms with sash windows and high ceilings
Set on the outskirts of a popular Somerset village, this elegant Georgian semi-detached house offers generous family living in a tranquil rural setting. The property retains many period features — Bath stone fireplaces, high ceilings, large sash windows and flagstone floors — paired with practical living spaces including a kitchen/breakfast room, garden room and a utility/boiler area. Its mature, enclosed gardens and off-street parking add everyday convenience while preserving a sense of privacy and country charm.
The principal bedroom is dual aspect with an ensuite and pleasant garden views; three further bedrooms and a family bathroom complete the upper floor, well suited to family life or flexible home working. The bright kitchen has integrated appliances, a Rayburn for character and additional old-kitchen/utility space that could be adapted to your needs. A generous overall footprint (approx. 2,539 sq ft) and about ten principal rooms make this a substantial home for entertaining and daily living.
Important practical points: the house is Grade II listed, which preserves its character but will restrict alterations and may complicate certain works or permissions. Heating is oil-fired and the property shares a modern digester; broadband is slow in this remoter location. Council Tax sits at Band G, reflecting higher running costs. These factors are balanced by low local crime, no flood risk, and an affluent, agriculturally rich area with good local schools and strong community facilities.
This home will suit buyers seeking a character-filled family house in peaceful countryside — those who value history, substantial indoor and outdoor space, and who accept the listed constraints and rural utilities profile. With nearby market towns and country reserves within easy reach, it offers a lifestyle of calm, nature and village community.
5 bedroom detached house for sale in Kite House, Littlemoor, Mark, TA9 — £1,750,000 • 5 bed • 4 bath • 4090 ft²
4 bedroom semi-detached house for sale in The Mill Masters House, Back Lane, Darshill, Shepton Mallet, BA4 5HF, BA4 — £460,000 • 4 bed • 2 bath • 1593 ft²
5 bedroom detached house for sale in Catsgore, Somerton, TA11 — £925,000 • 5 bed • 3 bath • 4952 ft²
4 bedroom detached house for sale in Sand Road, Wedmore, BS28 — £1,500,000 • 4 bed • 3 bath • 3622 ft²
3 bedroom detached house for sale in Oxford Street, Evercreech, Shepton Mallet, BA4 — £310,000 • 3 bed • 2 bath • 1002 ft²
3 bedroom detached house for sale in ., Godney, Wells, BA5 — £485,000 • 3 bed • 1 bath • 1863 ft²










































































































































