Ready-to-live-in family home close to park, schools and commuter links.
Extended semi-detached house with enlarged accommodation on two levels
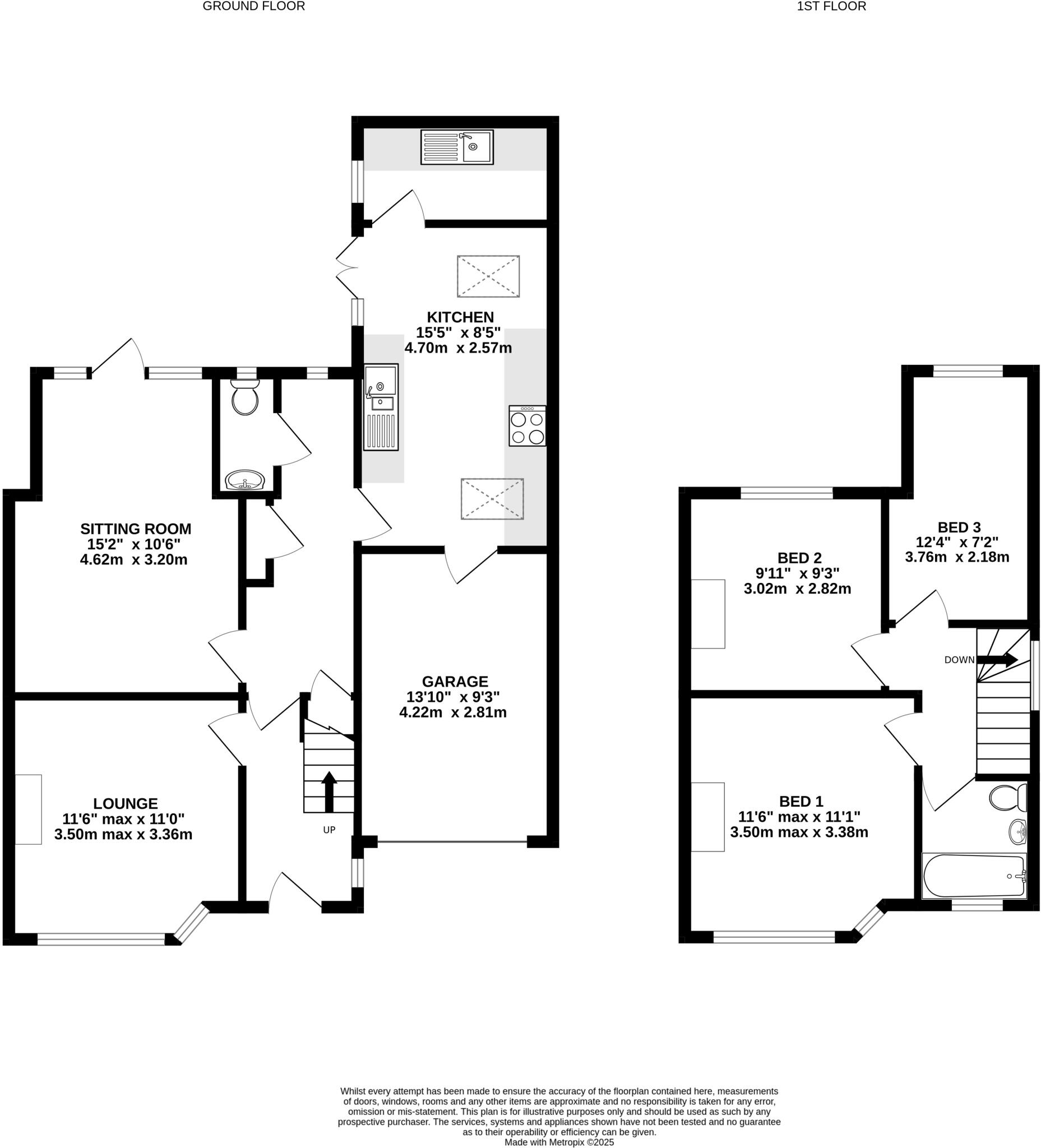
This extended three-bedroom semi-detached house sits quietly in a cul-de-sac close to Thelwall village centre and local schools, making it well suited to families seeking convenience and space. The property has been extended on both floors, creating a generous living layout that includes two reception rooms, a breakfast kitchen with French doors to the rear garden, a utility and useful built-in storage.
The home benefits from recent upgrades including double glazing and a gas central heating system, and it presents in good order throughout. Driveway parking leads to a small attached garage, and the enclosed rear garden is low-maintenance and private. Proximity to Elizabeth Park and good commuter links to the M6/M56 add practical appeal.
Buyers should note the house is modest in overall floor area (approximately 722 sq ft) on a small plot, with a single bathroom serving three bedrooms. Walls are cavity-built with no installed insulation assumed, and tenure details are not provided. There is a medium flood risk in the area, which may affect insurance and future works.
This property will suit families who value location, a ready-to-live-in home with some extra reception space and scope to personalise, while being mindful of its compact footprint and the need to consider insulation or flood-related precautions.
3 bedroom semi-detached house for sale in Moore Avenue, Thelwall, WA4 — £395,000 • 3 bed • 1 bath • 1414 ft²
3 bedroom semi-detached house for sale in Village Close, Thelwall, WA4 — £335,000 • 3 bed • 1 bath • 721 ft²
3 bedroom semi-detached house for sale in Moore Avenue, Thelwall, Warrington, WA4 — £380,000 • 3 bed • 1 bath • 1271 ft²
3 bedroom semi-detached house for sale in Thelwall New Road, Thelwall, WA4 — £340,000 • 3 bed • 1 bath • 1314 ft²
3 bedroom semi-detached house for sale in Cuerdon Drive, Thelwall, Warrington, WA4 — £350,000 • 3 bed • 1 bath • 909 ft²
3 bedroom semi-detached house for sale in Pelham Road, Thelwall, Warrington, WA4 — £280,000 • 3 bed • 1 bath • 839 ft²














































































