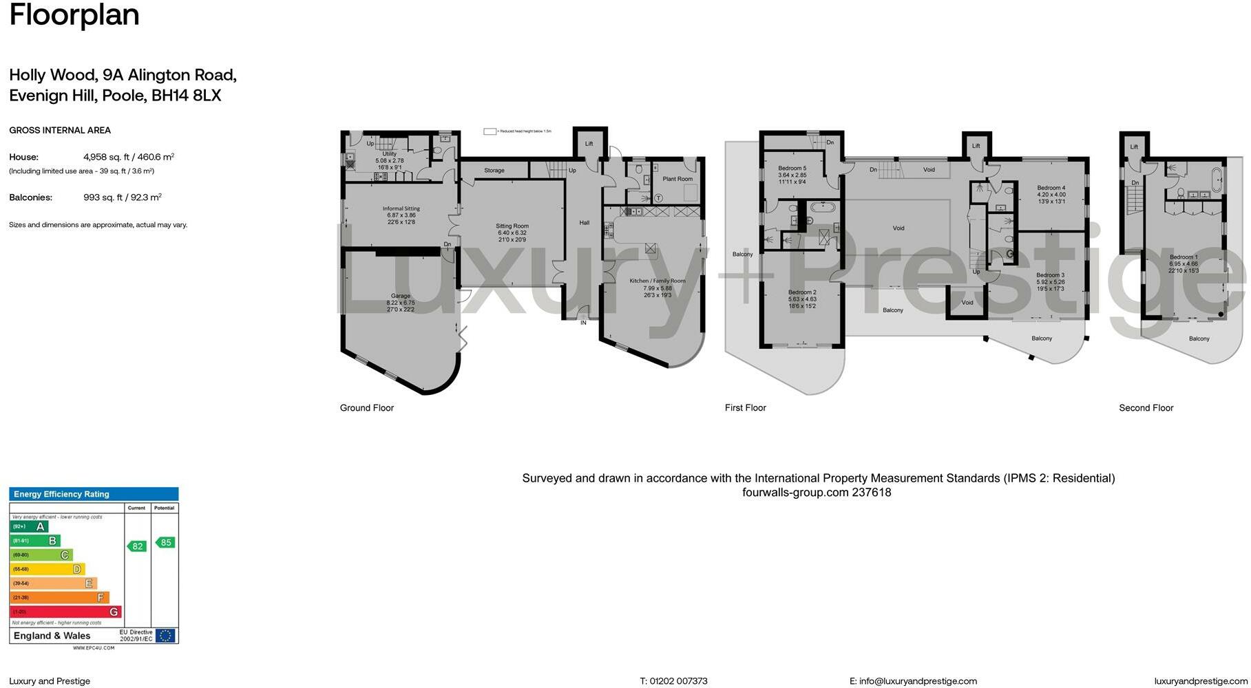
**Standout Features:**
- Unique contemporary design with 5,000 square feet of living space
- Five luxurious bedroom suites, each with en suite facilities
- Spectacular galleried sitting room and open plan kitchen family room
- Choice of private balconies, including one with stunning harbour views
- Convenient lift access to all floors
- Flexible layout allows for potential guest or staff annexe
- Oversized integral garage and beautifully landscaped gardens
Discover a stunning contemporary home in the prestigious Evening Hill area, just moments from Poole Harbour. Spanning approximately 5,000 square feet, this detached five-bedroom property boasts an impressive design that includes a breathtaking galleried sitting room and expansive open plan kitchen family room, perfect for both entertaining and everyday living. Each of the five bedrooms comes equipped with en suite facilities, ensuring comfort and privacy for family and guests.
The home's flexible layout offers the option to create a separate guest or staff annexe, featuring its own entrance and kitchen. Enjoy multiple balconies that provide serene outdoor spaces, with the top floor balcony offering delightful harbour glimpses. Notable luxury features such as gas underfloor heating, intelligent lighting, and high-end finishes enhance the living experience.
The grounds feature a level lawn and an enclosed courtyard, complemented by an oversized garage for ample parking. Although the broadband speeds are slow, the home's excellent mobile signal and proximity to upscale amenities make it an attractive investment. Positioned in a highly affluent area, this property is ideal for families seeking spacious accommodations in a serene environment. Don’t miss out on this exceptional opportunity—properties like this are rare!
5 bedroom detached house for sale in Alington Road, Evening Hill, BH14 — £6,250,000 • 5 bed • 4 bath • 7000 ft²
4 bedroom detached house for sale in Whitecliff Road, Whitecliff, BH14 — £1,795,000 • 4 bed • 4 bath • 3350 ft²
4 bedroom detached house for sale in Bingham Avenue, Lilliput, BH14 — £1,650,000 • 4 bed • 4 bath • 3100 ft²
5 bedroom detached house for sale in Whitecliff Road, Whitecliff, BH14 — £2,300,000 • 5 bed • 4 bath • 4279 ft²
5 bedroom detached house for sale in Elms Avenue, Lilliput, BH14 — £4,300,000 • 5 bed • 3 bath • 3769 ft²
5 bedroom detached house for sale in Brudenell Road, Sandbanks, BH13 — £1,995,000 • 5 bed • 4 bath • 3200 ft²














































































