Large garden and driveway with scope to extend for growing families.
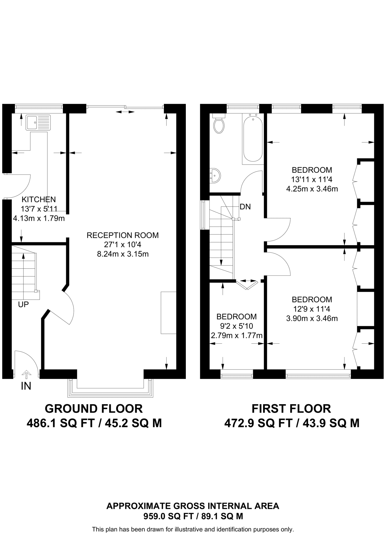
3 bedrooms and 1 bathroom across two storeys
Set on Eastcote Lane, this three-bedroom semi-detached house offers practical family living with clear potential. The bright reception room includes dining space and opens onto a large private rear garden — a rare outdoor asset for the area. A driveway gives convenient off-street parking and the property is Freehold.
The house is an attractive mid-20th century Tudor Revival with period character, however it requires updating and general maintenance throughout. Accommodation includes three bedrooms and one bathroom across two storeys; the layout and plot provide scope to extend subject to planning permission (STPP). Buyers seeking to add value will find straightforward improvement and extension potential.
Location is family-friendly: multiple primary and secondary schools are within walking distance, including several rated Good and one Outstanding. Practical local amenities are abundant, public transport links are close by and broadband and mobile connectivity are strong. Crime levels are very low, which supports long-term residential appeal.
This property is best suited to families or buyers looking for a renovation project with upside. Expect renovation costs for kitchen, bathroom and general décor; once improved, the house could provide comfortable long-term living or enhanced resale value.
3 bedroom semi-detached house for sale in Carlyon Avenue, South Harrow, Harrow, HA2 — £550,000 • 3 bed • 1 bath • 1061 ft²
3 bedroom semi-detached house for sale in Collins Drive, Eastcote, HA4 — £550,000 • 3 bed • 1 bath • 880 ft²
3 bedroom semi-detached house for sale in Clewer Crescent, Harrow, HA3 — £575,000 • 3 bed • 2 bath • 718 ft²
3 bedroom semi-detached house for sale in Greencroft Avenue, Ruislip, HA4 — £600,000 • 3 bed • 1 bath • 863 ft²
3 bedroom end of terrace house for sale in Ravenswood Crescent, Harrow, Middlesex, HA2 — £600,000 • 3 bed • 1 bath • 1338 ft²
3 bedroom terraced house for sale in Moat Drive, Harrow, HA1 — £599,950 • 3 bed • 1 bath • 971 ft²


























