Compact single-storey retreat with hot tub close to Padstow and coastal attractions.
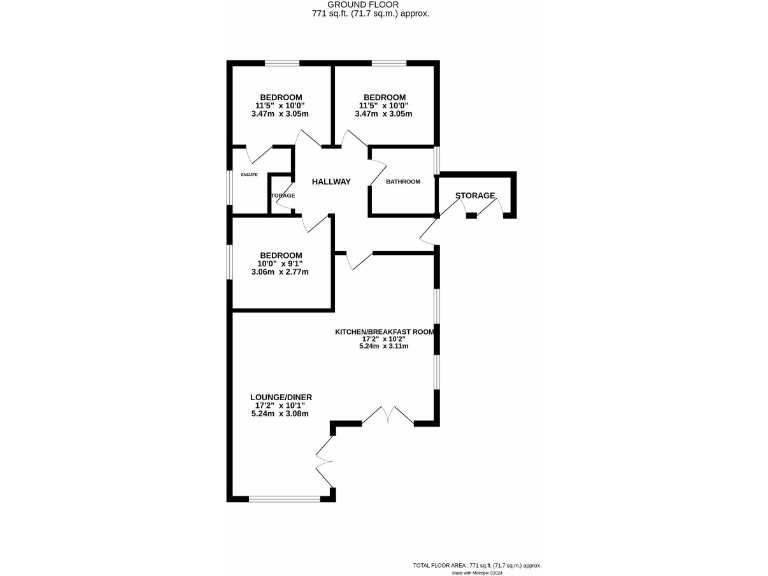
3 bedrooms in a single-storey layout, approx 771 sq ft
Open-plan living with wood burner and large windows
Private fenced garden, decking and hot tub included
Leasehold tenure — buyer to confirm terms and remaining term
Timber exterior requires periodic maintenance against weather
No flooding risk; very low local crime rate
Fast broadband; average mobile signal in the area
Council tax band not provided — buyer to verify
Set in a quiet rural hamlet near Padstow, this single-storey wooden residence offers compact, contemporary living for short-term holiday use or a part-time rural base. The open-plan living area with timber finishes and a wood burner creates a warm, relaxed atmosphere for evenings in, while large windows bring in natural light and countryside views.
Externally the property benefits from a private fenced garden, decking with a hot tub and outdoor seating — ideal for entertaining or relaxing after a day exploring local beaches and attractions. Three bedrooms and a modern shower room provide flexible sleeping arrangements within a modest footprint of about 771 sq ft.
Important practical points are straightforward: the home is leasehold, and the council tax band is not supplied. The timber exterior will need periodic maintenance to protect against weathering. Broadband speeds are reported as fast, mobile signal average, and there is no flooding risk.
This property suits buyers seeking a turn-key holiday base or an income opportunity as a short-let (check lease terms). It is compact and low-maintenance compared with a full-sized house, but buyers should factor in ongoing exterior upkeep and confirm any leasehold conditions before proceeding.
3 bedroom bungalow for sale in Meadowside Farm, Winnards Perch, St. Columb, Cornwall, TR9 — £245,000 • 3 bed • 2 bath • 865 ft²
3 bedroom bungalow for sale in Meadowside Farm, Winnards Perch, St. Columb, Cornwall, TR9 — £240,000 • 3 bed • 2 bath • 955 ft²
2 bedroom bungalow for sale in Trehawks, St. Minver Holiday Park, St Minver, Rock, PL27 — £125,000 • 2 bed • 2 bath • 666 ft²
3 bedroom bungalow for sale in Retallack Resort, Winnards Perch, St. Columb, Cornwall, TR9 — £250,000 • 3 bed • 3 bath • 839 ft²
3 bedroom bungalow for sale in The Meadows, Retallack, St Columb Cornwall, TR9 — £250,000 • 3 bed • 2 bath • 780 ft²
3 bedroom detached house for sale in St. Minver, Wadebridge, Cornwall, PL27 — £100,000 • 3 bed • 2 bath • 825 ft²






















































