Large family home with private garden and excellent transport and school links.
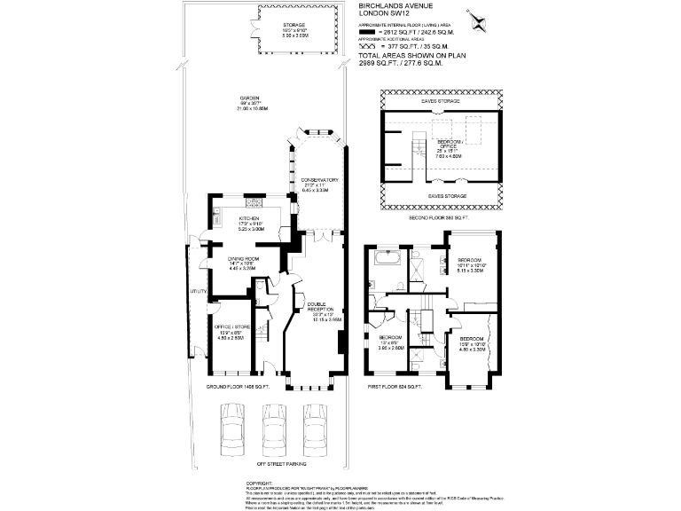
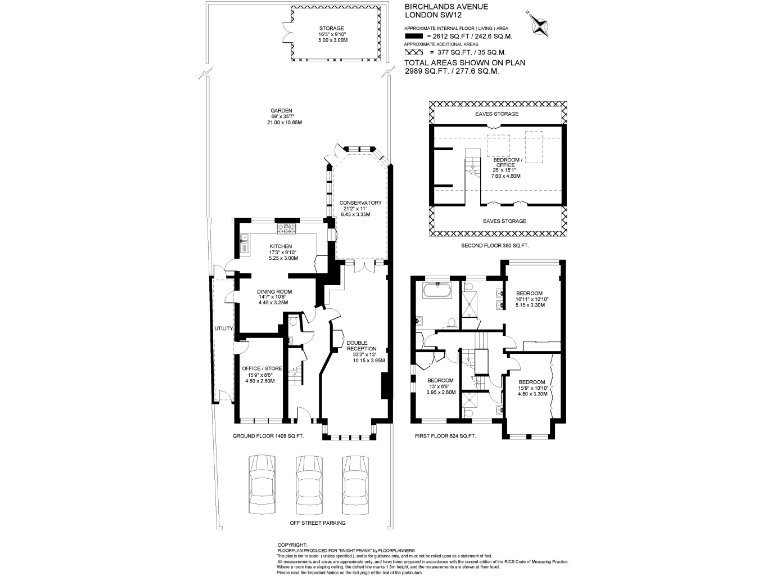
Extremely large c.2,989 sq ft family home over three floors
Private, level 69 ft rear garden with patio and level lawn
Off-street parking for several vehicles on landscaped driveway
Principal bedroom with en-suite; fourth bedroom occupies top floor with Velux
Double reception, conservatory dining room and generous kitchen/diner
Potential to extend further subject to planning permission
Solid brick walls likely without insulation; consider retrofit costs
Council tax described as quite expensive
Set across three spacious floors, this 1930s semi-detached family home offers flexible living in the Nightingale Triangle. Generous reception space includes a double reception with fireplace and a conservatory-dining room opening onto a private, level 69 ft rear garden—ideal for children and entertaining. The kitchen/dining room, utility and ground-floor WC complete a practical layout for family living.
Three double bedrooms occupy the first floor, with the principal suite featuring fitted wardrobes and an en-suite shower. A fourth bedroom spans almost the entire top floor with multiple Velux windows, creating a bright, calm retreat. Off-street parking for several vehicles and close walking distance to Wandsworth Common, Northern line stations and excellent schools add daily convenience.
The house is substantial in scale (c. 2,989 sq ft) and offers clear potential to extend further, subject to planning permission. It suits families seeking room to grow in a well-connected, affluent area with a strong local school offering.
Notable practical points: the property's solid brick construction likely lacks cavity insulation, which may require upgrading. Council tax charges are described as quite expensive. Prospective buyers should allow for modernisation in places and confirm exact dates for double glazing and heating installations.
5 bedroom semi-detached house for sale in Birchlands Avenue, London, SW12 — £2,500,000 • 5 bed • 3 bath • 2402 ft²
4 bedroom semi-detached house for sale in Holmside Road, Balham, London, SW12 — £1,660,000 • 4 bed • 2 bath • 2245 ft²
4 bedroom end of terrace house for sale in Bracken Avenue, London, SW12 — £1,400,000 • 4 bed • 2 bath • 1572 ft²
4 bedroom terraced house for sale in Endlesham Road, London, SW12 — £1,900,000 • 4 bed • 2 bath • 2377 ft²
5 bedroom terraced house for sale in Calbourne Road, SW12 — £1,800,000 • 5 bed • 3 bath • 2100 ft²
4 bedroom terraced house for sale in Temperley Road, London, SW12 — £1,395,000 • 4 bed • 2 bath • 1511 ft²


















































































































































































