HP2 7BY - 1 bed maple house one bedroom in Valley Green, HP2 7BY

View on Property Piper

1 bedroom apartment for sale in Maple House, Hemel Hempstead, HP2

Summary - 11, MAPLE HOUSE, VALLEY GREEN HP2 7BY

1 bed 1 bath Apartment

Contemporary, low-maintenance starter apartment near parks and transport links.
Open-plan lounge/kitchen/dining with large windows
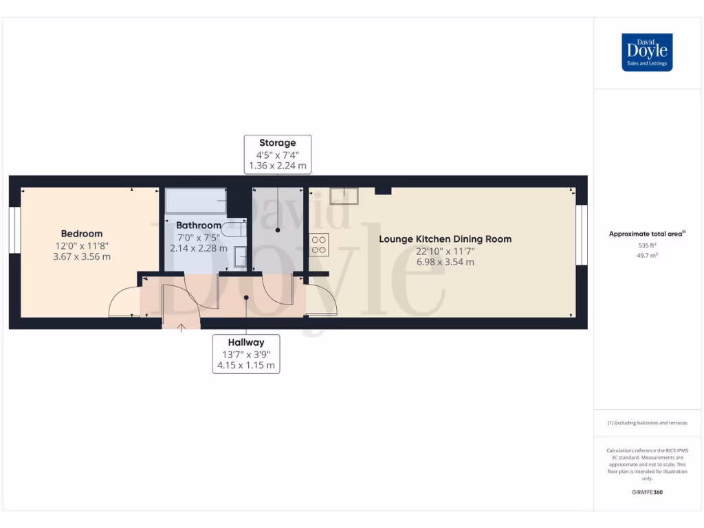
This modern one-bedroom apartment in Maple House offers contemporary open-plan living on a practical 535 sq ft layout. Built in 2022 and covered by an NHBC warranty, the property feels fresh and low-maintenance, with large windows, a useful storage cupboard and allocated off-street parking.

The generous bedroom and fitted bathroom provide comfortable everyday living, while the open-plan lounge/kitchen/dining area suits both relaxing and entertaining. Communal gardens and immediate access to the Nicky Line bridleway, Cupid Green Park and local shops add lifestyle value for walkers, cyclists and families.

Buyers should note the home uses electric room heaters (no gas central heating), which can affect running costs compared with mains gas. The property is leasehold with around 120 years remaining and an average service charge of £1,200 per year. Crime levels in the wider area are above average, so consider local security measures and personal research.

Chain-free sale and proximity to Hemel Hempstead’s transport links (M1, M25 and the rail service to London) make this a straightforward move for first-time buyers seeking a modern, well-located starter home with future rental potential.

Property Details

Image Descriptions

Floorplan Description

Rooms

Textual Property Features

Target Audience

AI Tags

Detected Visual Features

EPC Details

Nearby Schools

Nearest Bars And Restaurants

,,,,}

Nearest General Shops

,,}

Nearest Grocery shops

,,}

Nearest Supermarkets

,,}

Nearest Religious buildings

,,}

Nearest Medical buildings

,,,}

Nearest Airports

}

Nearest Leisure Facilities

,,,,}

Nearest Tourist attractions

,,}

Nearest Train stations

,,,,}

Nearest Bus stations and stops

,,,,}

Nearest Hotels

,,}

Tags

Local Market Stats

Similar Properties

Meta

High Res Images

Compatible Images

Low res Images

Thumbnails

Raw Images

High Res Floorplan Images

Compatible Floorplan Images

Low res Floorplan Images

FloorplanImages Thumbnail

Raw Floorplan Images