**Standout Features:**
- Modern one-bedroom apartment located in Uxbridge Town Centre
- Lift access to the third floor, ensuring ease of movement
- High-quality, stunning interiors with recessed lighting and minimalist design
- Open-plan living space with integrated appliances and contemporary finishes
- Secure video entry system for peace of mind
- Chain-free with 145 years left on the lease
**Potential Concerns:**
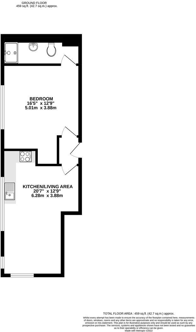
- Average-sized living space at approximately 459 square feet
- Service charge and ground rent add ongoing costs
Discover urban living at its finest in this stylish one-bedroom apartment nestled in the heart of Uxbridge Town Centre. With its modern design and high-end finishes, including an open-plan kitchen with integrated appliances and sleek stone worktops, this third-floor residence offers both comfort and convenience. Enjoy the luxury of lift access and a secure video entry system, providing you with peace of mind.
Ideal for young families or investors, this property is chain-free and positioned just moments from a vibrant array of shops, restaurants, and green spaces. Contemporary fixtures in the bathroom and an abundance of natural light create an inviting atmosphere ready for you to call home. While the living area is modestly sized, you’ll relish the urban lifestyle right outside your door. With a service charge of £1200 and a manageable ground rent of £240 per annum, this apartment represents a great opportunity in an ever-growing community. Don't miss out on this exclusive chance to enjoy comfortable city living!
1 bedroom apartment for sale in High Street, Uxbridge, UB8 — £225,000 • 1 bed • 1 bath • 375 ft²
1 bedroom apartment for sale in Westcombe House, 38 Windsor Street, Uxbridge, UB8 — £280,000 • 1 bed • 1 bath • 464 ft²
1 bedroom apartment for sale in Windsor Street, Uxbridge, UB8 — £240,000 • 1 bed • 1 bath • 327 ft²
1 bedroom apartment for sale in Harefield Road, Uxbridge, UB8 — £270,000 • 1 bed • 1 bath • 580 ft²
1 bedroom apartment for sale in Windsor Street, Uxbridge, Middlesex, UB8 — £260,000 • 1 bed • 1 bath • 395 ft²
1 bedroom apartment for sale in Windsor Street, Uxbridge, Middlesex, UB8 — £275,000 • 1 bed • 1 bath • 487 ft²






































