**Standout Features:**
- 2-bedroom end-terrace home with garage
- Approved planning permission for a double side extension
- Bright, airy lounge with large windows
- Extended with utility room and downstairs WC
- Well-proportioned bedrooms and a family bathroom
- Substantial outdoor space for relaxation and entertainment
- Fast broadband and excellent mobile signal
**Concerns:**
- Roof issues may need addressing
- Located in a deprived area (Challenged transitionaries)
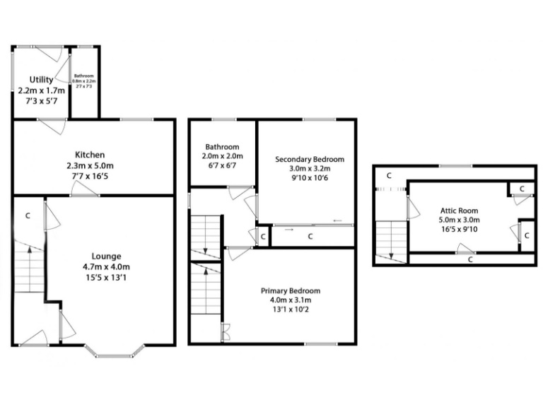
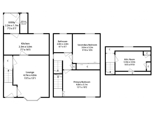
Welcome to this charming 2-bedroom end-terrace home on Ballochney Street in Airdrie. Ideal for first-time buyers, couples, or small families, this property combines practical living with the potential for future enhancements. The spacious driveway leads to a detached garage, ensuring off-street parking and ample storage. Inside, enjoy the generous, light-filled lounge that connects to a well-equipped kitchen, perfect for entertaining or cozy family meals.
The thoughtful rear extension includes a utility room and a convenient downstairs WC. Upstairs, you'll find two nicely sized bedrooms and a family bathroom, complemented by access to a floored attic—an excellent opportunity for extra storage or development. With approved planning permission for a double side extension, you can easily tailor the home to suit your needs. The outdoor space is ready for your personal touch, whether it's for relaxation or landscaping projects.
While the property's location reflects some challenges, it provides significant value at an attractive asking price of £109,995. With fast broadband and excellent mobile connectivity, this home is poised for potential growth. Don’t miss your chance to own a piece of this inviting community—schedule your viewing today!
2 bedroom end of terrace house for sale in Ballochney Street, Airdrie, ML6 — £125,000 • 2 bed • 1 bath
2 bedroom semi-detached house for sale in Heatherbank Walk, Airdrie, North Lanarkshire, ML6 — £110,000 • 2 bed • 1 bath • 514 ft²
2 bedroom end of terrace house for sale in Market Street, Airdrie, ML6 — £135,000 • 2 bed • 2 bath • 753 ft²
3 bedroom terraced house for sale in Asher Road, Airdrie, ML6 — £134,995 • 3 bed • 1 bath • 1036 ft²
2 bedroom terraced house for sale in 6 Lismore Place Airdrie ML6 8FZ, ML6 — £115,000 • 2 bed • 2 bath • 537 ft²
3 bedroom end of terrace house for sale in Commonside Street, Airdrie, North Lanarkshire, ML6 — £160,000 • 3 bed • 1 bath • 899 ft²














































































































































