Generous rooms and swift Elizabeth line access ideal for central-living first buyers.
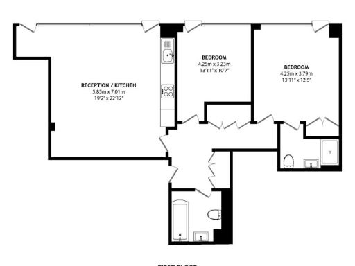
Large 907 sq ft two-bedroom, two-bathroom first-floor apartment
Open-plan living with floor-to-ceiling windows, east-facing morning sun
0.2 miles to Whitechapel station (Elizabeth line) — excellent transport
Chain-free sale; 112 years remaining on the lease
Service charge approx £1,500 pa; ground rent £350 pa
Electric main heating (boiler and radiators) — potentially higher energy costs
Located near Weavers Fields, Shoreditch, and plentiful local amenities
Area classified as deprived; crime level reported as average
This bright, first-floor apartment offers unusually generous space for a two-bedroom in E1 — over 900 sq ft with an open-plan living, dining and kitchen flooded by morning sun from its east-facing windows. The modern finish, wooden floors and two bathrooms make it ready to occupy for a couple, sharers or a first-time buyer seeking extra room and flexibility.
Transport is a major convenience: Whitechapel station and the Elizabeth line are about 0.2 miles away, giving rapid links across London. Local green space at Weavers Fields and the cafes, shops and nightlife of Shoreditch and Spitalfields are within easy walking distance, placing everyday amenities on your doorstep.
Practical costs and tenure are clear: the flat is leasehold with 112 years remaining, an annual service charge of £1,500 and ground rent of £350. Heating is electric with a boiler and radiators — convenient but likely to make energy bills higher than gas-heated homes. Council tax is moderate.
The neighbourhood is lively and well served but classified as deprived with average crime levels; buyers should balance the transport and amenity benefits against local socioeconomic indicators. The property is offered chain-free and suits buyers wanting a spacious, modern apartment near central transport, or investors seeking strong rental appeal.
2 bedroom apartment for sale in Head Street, London, E1 — £550,000 • 2 bed • 2 bath • 680 ft²
2 bedroom apartment for sale in Beaumont Grove, London, E1 — £350,000 • 2 bed • 2 bath • 469 ft²
2 bedroom apartment for sale in Underwood Road, London, E1 — £600,000 • 2 bed • 1 bath • 804 ft²
2 bedroom flat for sale in Cavell Street, London, E1 — £395,000 • 2 bed • 1 bath • 500 ft²
2 bedroom apartment for sale in Old Castle Street, London, E1 — £600,000 • 2 bed • 2 bath • 697 ft²
2 bedroom flat for sale in Canter Way, London, E1 — £1,000,000 • 2 bed • 2 bath • 851 ft²


















































