Bright reception, big garden, close to parks and good schools.
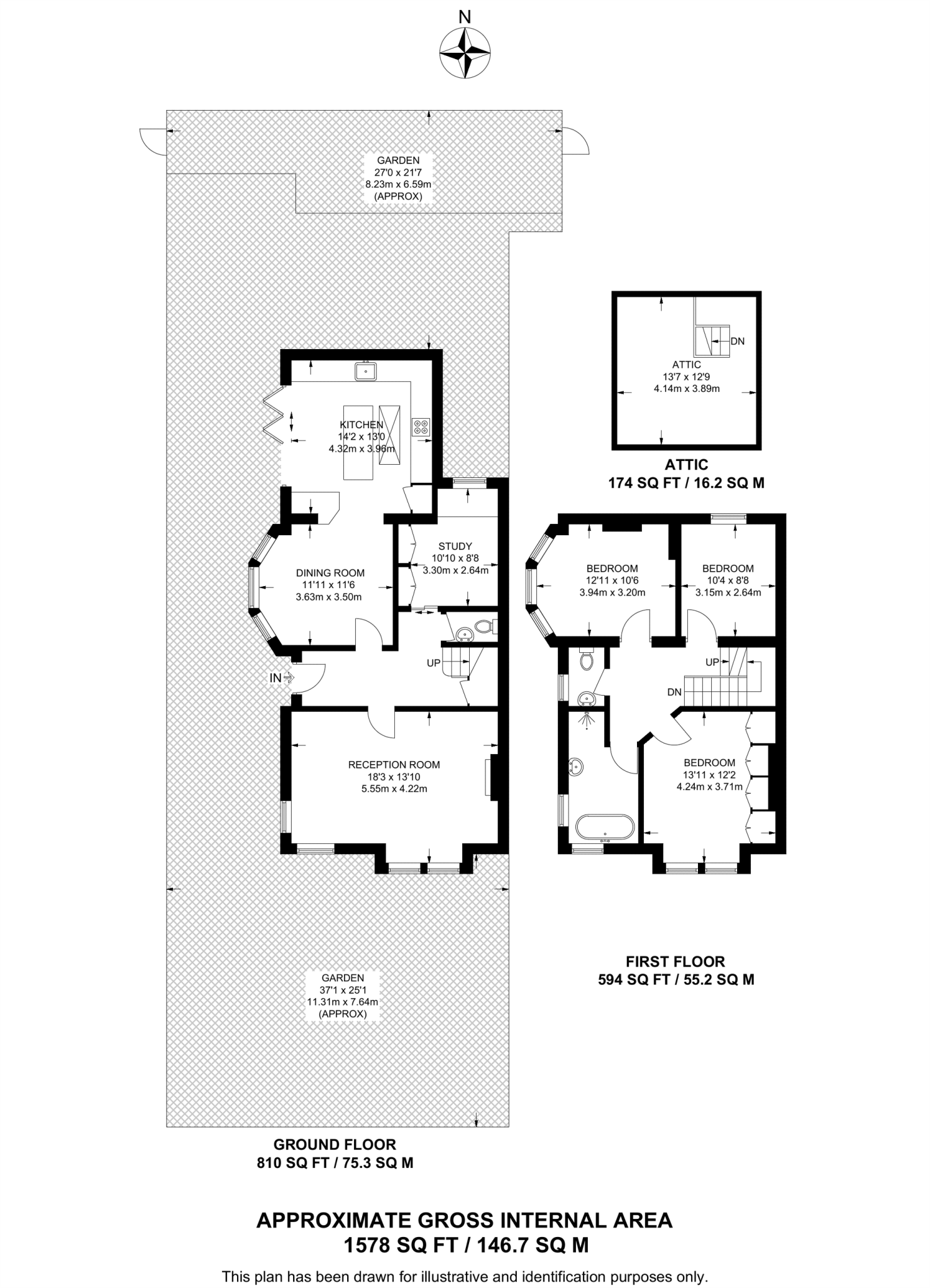
Four bedrooms and spacious living across two storeys
Set on a quiet residential road a short walk from Mayow Park, this end-of-terrace family home combines period charm with contemporary living. The bright bay-windowed reception and high-ceilinged living spaces create airy, flexible rooms for day-to-day family life and entertaining. A stylish modern kitchen with a central island anchors open-plan dining and informal living.
Outside, a generous wrap-around garden with a raised patio offers private outdoor dining, play space and room to extend (subject to consents). The house is well placed for popular state and private schools, and Sydenham Overground provides straightforward commuter links into Central London.
Practical points to note: the property dates from the early 1900s and has solid brick walls with no known insulation, so upgrading thermal performance could be needed. There is one full bathroom plus two separate WCs, which may be tight for four bedrooms. Overall this freehold home presents a comfortable, well-located family opportunity with scope to improve energy efficiency and add value through sympathetic updating.
4 bedroom end of terrace house for sale in Beaulieu Avenue, London, SE26 — £675,000 • 4 bed • 1 bath • 1030 ft²
4 bedroom house for sale in Whittell Gardens, Sydenham, London SE26 — £975,000 • 4 bed • 2 bath • 1406 ft²
2 bedroom terraced house for sale in Sunnydene Street, Sydenham, London, SE26 — £550,000 • 2 bed • 1 bath • 829 ft²
5 bedroom end of terrace house for sale in Lawrie Park Crescent, Sydenham, London, SE26 — £1,100,000 • 5 bed • 3 bath • 1796 ft²
3 bedroom semi-detached house for sale in Whittell Gardens, Sydenham, London, SE26 — £825,000 • 3 bed • 1 bath • 926 ft²
3 bedroom end of terrace house for sale in Fairlawn Park, Sydenham, London, SE26 — £600,000 • 3 bed • 2 bath • 1335 ft²


























































































