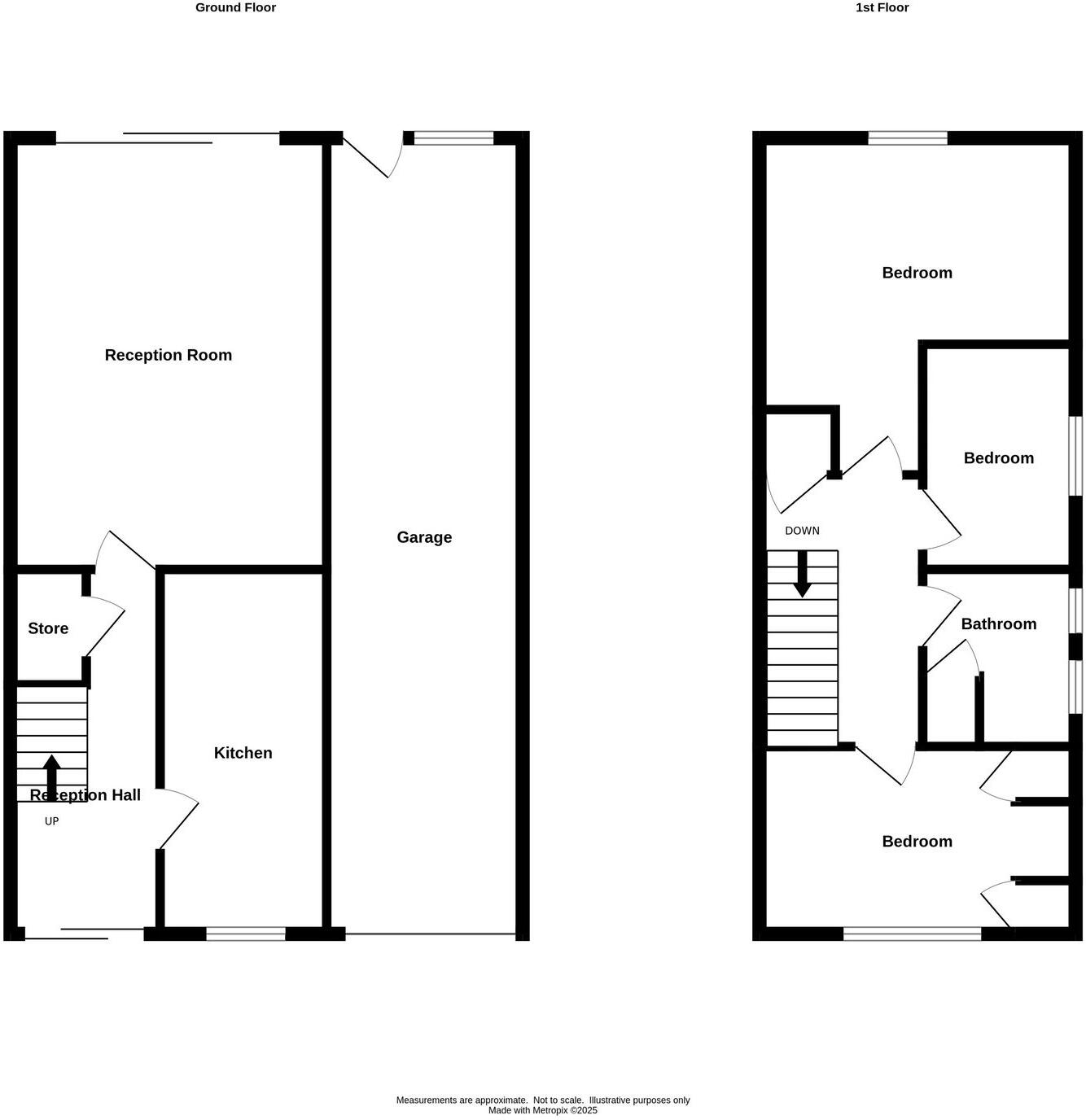
Well-located family home with long garage and enclosed rear garden.
Three bedrooms with comfortable principal room sizes
Set on a popular street in Wollaston, this three-bedroom semi-detached home offers a practical, family-friendly layout and generous principal rooms. The large sitting room with dining area and a lengthy garage add everyday convenience, while an enclosed rear garden with patio and lawn provides safe outdoor space for children and entertaining.
Built in the mid-20th century, the house benefits from double glazing and gas central heating. Room proportions are comfortable throughout—particularly the main bedroom—and the reception hall and layout work well for busy family life. The owner will clear existing planting and re-seed the lawn before completion, so the garden will be ready to use.
There are some running costs and improvement opportunities to consider: the EPC rated D and assumed uninsulated cavity walls suggest scope for energy-efficiency upgrades, and the property is of a standard construction era (1950–66) where buyers should expect typical mid-century maintenance. The long garage and driveway add practical parking and storage but the plot is relatively small.
With good local schools, excellent mobile signal and fast broadband availability, this freehold home suits first-time buyers or young families seeking a well-located house with straightforward potential to personalise and improve over time. Early viewing is recommended to appreciate the size and layout in person.
3 bedroom semi-detached house for sale in Dorset Road, Wollaston, Stourbridge, DY8 4SZ, DY8 — £225,000 • 3 bed • 1 bath • 732 ft²
3 bedroom semi-detached house for sale in Kingsway, Wollaston, Stourbridge, DY8 4TG, DY8 — £260,000 • 3 bed • 1 bath • 809 ft²
3 bedroom semi-detached house for sale in Park Road West, Stourbridge, DY8 3NQ, DY8 — £290,000 • 3 bed • 1 bath • 900 ft²
3 bedroom semi-detached house for sale in WOLLASTON - High Street, DY8 — £390,000 • 3 bed • 1 bath • 980 ft²
3 bedroom semi-detached house for sale in Meriden Avenue, Stourbridge, DY8 — £390,000 • 3 bed • 1 bath • 1011 ft²
3 bedroom semi-detached house for sale in Bridgnorth Road, Wollaston, Stourbridge, DY8 — £259,500 • 3 bed • 1 bath • 708 ft²


























































































