Three-bedroom single-floor home with generous garden and garage near top schools.
Detached single-level bungalow on a large, private plot
Set on a generous plot in sought-after Standish, this three-bedroom detached bungalow offers comfortable single-level living and strong outdoor space. The wrap-around large garden and long driveway with attached garage provide privacy, storage and plenty of parking for family or visitors.
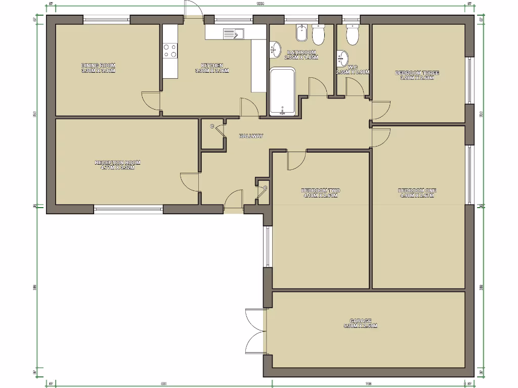
Internally the layout is practical: entrance hallway, reception room, separate dining room, fitted kitchen, three bedrooms, family bathroom and separate WC. At about 816 sq ft the accommodation is well-proportioned for downsizers or small families but is not large; the home's 1970s construction means some fittings and finishes may benefit from updating to suit modern tastes.
This is a freehold property in a very low-crime, affluent area with excellent mobile signal and fast broadband—ideal for remote working or staying connected. Local schools consistently achieve high Ofsted ratings and village amenities are within easy reach, adding to everyday convenience.
Notable practical points: the EPC is currently to be confirmed, and there is a single bath/shower room plus separate WC which could be a consideration for larger households. Early inspection will show the property's potential and the scope for modest modernisation while enjoying immediate single-floor living.
3 bedroom detached bungalow for sale in Wigan Road, Standish, Wigan, WN6 — £410,000 • 3 bed • 2 bath • 1646 ft²
3 bedroom semi-detached bungalow for sale in Bentham Road, Standish, WN6 0ND, WN6 — £210,000 • 3 bed • 1 bath • 748 ft²
3 bedroom semi-detached bungalow for sale in Birch Avenue, Standish, Wigan, WN6 — £179,995 • 3 bed • 1 bath • 999 ft²
3 bedroom semi-detached house for sale in Dovedale Drive, Wigan, WN6 — £260,000 • 3 bed • 2 bath • 1047 ft²
3 bedroom detached house for sale in Malvern Street, Standish, Wigan, WN6 — £275,000 • 3 bed • 1 bath • 1410 ft²
1 bedroom detached house for sale in Almond Brook Road, Standish, WN6 — £200,000 • 1 bed • 1 bath • 848 ft²














































































