Large plot, double garage and countryside views — plenty of scope to modernise and extend.
Opposite farmland with peaceful lane setting
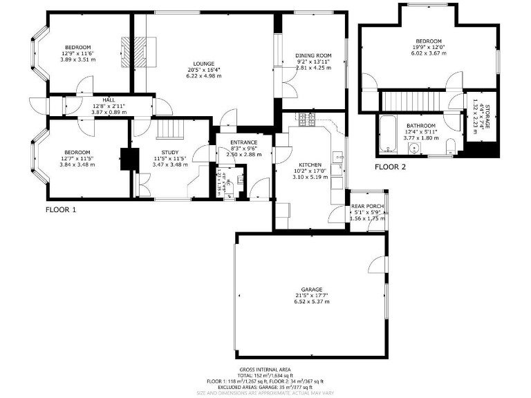
Set opposite open farmland, this mid-century detached chalet bungalow sits on an unusually large plot of around one-third of an acre. The house offers spacious rooms throughout, double-sized bedrooms, three reception rooms and a loft bedroom, giving flexibility for family living, home working or a simple conversion to create additional accommodation. A long driveway leads to a double garage and separate workshop — useful for hobbies, storage or easy vehicle parking.
The layout is versatile and extended, with a large lounge, separate dining/garden room and a kitchen-breakfast room. Gas central heating and double glazing are in place, but many internal finishes are dated and there is clear scope to improve or modernise. The former pool has been repurposed as a pond, adding character but requiring attention if you wished to restore a pool.
Practical considerations include slow broadband speeds in the area and an above-average council tax band. The property is freehold, has very low local crime and excellent mobile signal, and sits on a peaceful lane with direct countryside views. Planning or extension potential exists subject to consents, making this attractive for buyers seeking space to adapt and add value.
This home will suit buyers wanting rural calm within reach of the A22 and local schools — families looking for large rooms and gardens, or buyers seeking a renovation project with significant plot and garage space. Be mindful the interior needs updating and some external features (pool/pond) may require remedial works.
3 bedroom detached bungalow for sale in Magham Down, Hailsham, BN27 — £625,000 • 3 bed • 2 bath • 1341 ft²
3 bedroom detached house for sale in Summerfields Avenue, Hailsham, East Sussex, BN27 — £490,000 • 3 bed • 1 bath • 1327 ft²
3 bedroom detached bungalow for sale in Mill Road, Hailsham, BN27 — £530,000 • 3 bed • 2 bath • 1735 ft²
3 bedroom chalet for sale in Amberstone View, Hailsham, BN27 — £395,000 • 3 bed • 3 bath • 1489 ft²
2 bedroom bungalow for sale in South Road, Hailsham, BN27 — £390,000 • 2 bed • 2 bath • 1395 ft²
3 bedroom detached bungalow for sale in Hawthylands Drive, Hailsham, BN27 — £475,000 • 3 bed • 2 bath • 1348 ft²






































































































































