**Standout Features:**
- No onward chain
- Three bedrooms
- Semi-detached property
- Located in a quiet cul-de-sac
- Off-street driveway parking
- Good-sized garden with patio areas and storage rooms
- Spacious detached garage
**Concerns:**
- Requires complete renovation
- Dated kitchen and bathroom
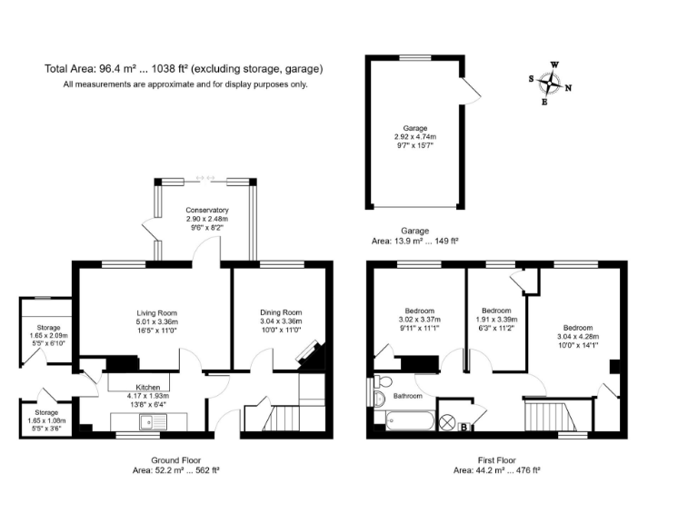
This three-bedroom semi-detached house in a serene cul-de-sac presents an exciting renovation opportunity. With an average size of 1,038 sq. ft., the home boasts a welcoming entrance hallway leading to a galley kitchen, a lounge, a conservatory, and a flexible reception room that can serve as a study. Upstairs, you'll find three comfortable bedrooms and a family bathroom. The property also includes an enclosed garden perfect for family gatherings and a detached garage for added convenience.
Nestled near Haysden Country Park and highly-rated schools, including Judd Boys Grammar School, this location is ideal for families looking for accessibility and community. Just 0.7 miles from Tonbridge Station, it offers great connectivity to London. Priced at £420,000, this chain-free property is not just a home; it’s a canvas waiting to be transformed into your dream abode. Don’t miss this chance to invest in a thriving neighborhood—viewings are highly recommended!
3 bedroom semi-detached house for sale in Priestley Drive, Tonbridge, Kent, TN10 — £400,000 • 3 bed • 1 bath • 971 ft²
3 bedroom terraced house for sale in Lodge Oak Lane, Tonbridge, TN9 — £300,000 • 3 bed • 1 bath
2 bedroom terraced house for sale in College Avenue, Tonbridge, Kent, TN9 — £250,000 • 2 bed • 1 bath • 765 ft²
3 bedroom house for sale in Nursery Close, Tonbridge, Kent, TN10 — £400,000 • 3 bed • 1 bath • 925 ft²
3 bedroom semi-detached house for sale in Nursery Close, Tonbridge, TN10 4JJ, TN10 — £400,000 • 3 bed • 1 bath • 916 ft²
5 bedroom detached house for sale in Wells Close, Tonbridge, Kent, TN10 — £775,000 • 5 bed • 2 bath • 1601 ft²










































































