AL1 3NL - 1 bedroom flat for sale in Beaumonds, Upper Marlborough Roa…

View on Property Piper

1 bedroom flat for sale in Beaumonds, Upper Marlborough Road, St. Albans, Hertfordshire, AL1

Summary - 11 BEAUMONDS ST ALBANS AL1 3NL

1 bed 1 bath Flat

**Standout Features:**
- Top-floor retirement flat specifically for over 55s
- Chain free with pleasant views over St. Albans
- Access to communal gardens and modern amenities
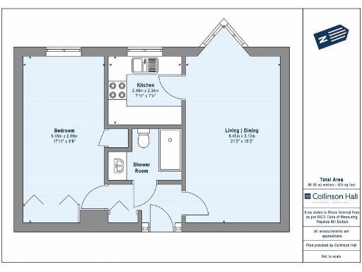
- Large living/dining area and good-sized bedroom
- Conveniently located near the city center
- Off-street residents parking available

**Potential Downsides:**
- Leasehold property
- Requires maintenance on electric storage heating

Discover this charming one-bedroom retirement apartment located in the sought-after Beaumonds area, just a short walk from the vibrant city center of St. Albans. This top-floor flat is in a well-maintained purpose-built block specifically designed for those aged 55 and over, offering both comfort and security. Enjoy the openness of the spacious living/dining area, a compact but functional kitchen, and a generously sized bedroom with storage. Amenities abound, from beautiful communal gardens to a secure entry system and an inviting communal lounge, fostering a sense of community among residents.

This property is perfect for individuals or couples seeking tranquility within an urban setting, with the added convenience of off-street parking. While the apartment is in good condition, be mindful that it operates on electric storage heating, which may require some maintenance. With the opportunity for peaceful living alongside vibrant city life, this exclusive offering is not likely to last long—seize the chance to make it your new home!

Property Details

Brochure Descriptions

Image Descriptions

Floorplan Description

Rooms

Textual Property Features

Detected Visual Features

EPC Details

Nearby Schools

Nearest Bars And Restaurants

,,,,}

Nearest General Shops

,,}

Nearest Grocery shops

,,}

Nearest Supermarkets

,,}

Nearest Religious buildings

,,}

Nearest Medical buildings

,,,}

Nearest Airports

,,}

Nearest Leisure Facilities

,,,,}

Nearest Tourist attractions

,,}

Nearest Train stations

,,,,}

Nearest Bus stations and stops

,,,,}

Nearest Hotels

,,}

Tags

Local Market Stats

AirBnB Data

Similar Properties

Meta

High Res Images

Compatible Images

Low res Images

Thumbnails

Raw Images

High Res Floorplan Images

Compatible Floorplan Images

Low res Floorplan Images

FloorplanImages Thumbnail

Raw Floorplan Images