Energy-efficient village house with garden and two parking spaces.
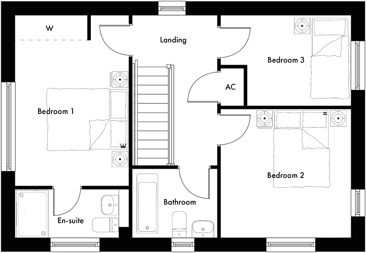
Three bedrooms with master en suite and modern fittings
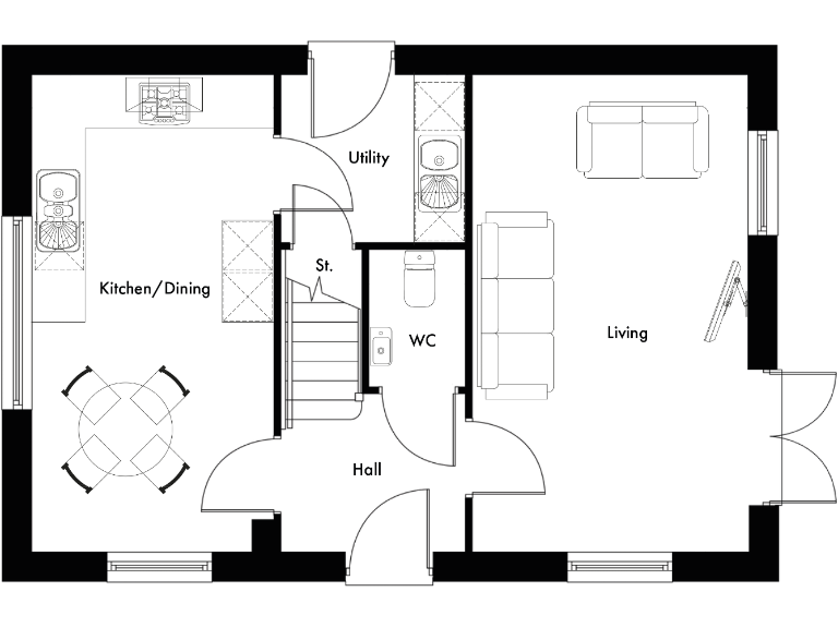
A bright three-bedroom detached home in Burton on the Wolds, built to contemporary standards and offered freehold. The ground floor flows from an open-plan kitchen-dining area into a separate utility and a generous living room with French doors that open directly onto a private garden — practical for family life and entertaining. The fitted kitchen includes integrated Bosch appliances and a separate utility adds useful storage and laundry space.
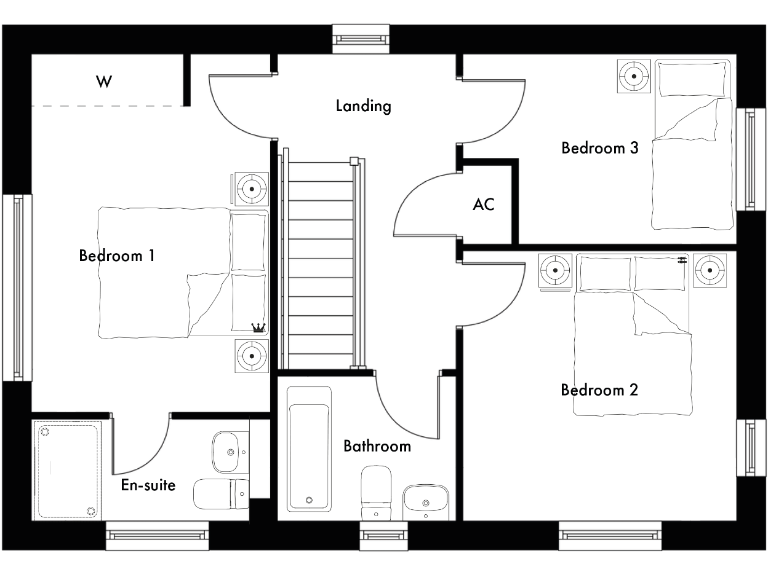
The master bedroom benefits from an en suite and USB/TV points; two further bedrooms and a family bathroom complete the comfortable first-floor layout. Energy and running-cost features include solar PV panels and an EV charger, and the property is covered by a 10-year NHBC warranty for buyer reassurance. Off-street parking for two cars and a decent plot size add practical day-to-day convenience.
Set in a prosperous village with excellent primary and independent schooling close by, the home suits families seeking a quieter rural lifestyle with good commuter links. Broadband is average and mobile signal is excellent. The house is a new build with modern finishes throughout but, as with new developments, some landscaping and settling may be required over time.
Overall this property offers low-maintenance, energy-efficient living in an affluent village setting. Buyers wanting a ready-to-live-in family home with eco features and secure warranty cover should view early; those seeking character period features or large rural plots may prefer alternatives.
3 bedroom detached house for sale in Sowters Lane,
Off Melton Road,
Burton on the Wolds,
Leicestershire,
LE12 5TS, LE12 — £399,995 • 3 bed • 2 bath • 1009 ft²
5 bedroom detached house for sale in Sowters Lane,
Off Melton Road,
Burton on the Wolds,
Leicestershire,
LE12 5TS, LE12 — £719,950 • 5 bed • 4 bath • 2167 ft²
3 bedroom detached house for sale in Burton-On-The-Wolds, Loughborough, LE12 — £399,995 • 3 bed • 2 bath • 418 ft²
4 bedroom detached house for sale in Burton-On-The-Wolds, Loughborough, LE12 — £469,995 • 4 bed • 2 bath • 563 ft²
4 bedroom detached house for sale in Seals Close, Burton-On-The-Wolds, Loughborough, LE12 — £435,000 • 4 bed • 2 bath • 1624 ft²
4 bedroom detached house for sale in Sowters Lane,
Off Melton Road,
Burton on the Wolds,
Leicestershire,
LE12 5TS, LE12 — £469,995 • 4 bed • 2 bath • 1327 ft²






















