Large gated five-bedroom family home with river views, extensive grounds and flexible outbuildings.
Gated driveway with electronically controlled entrance
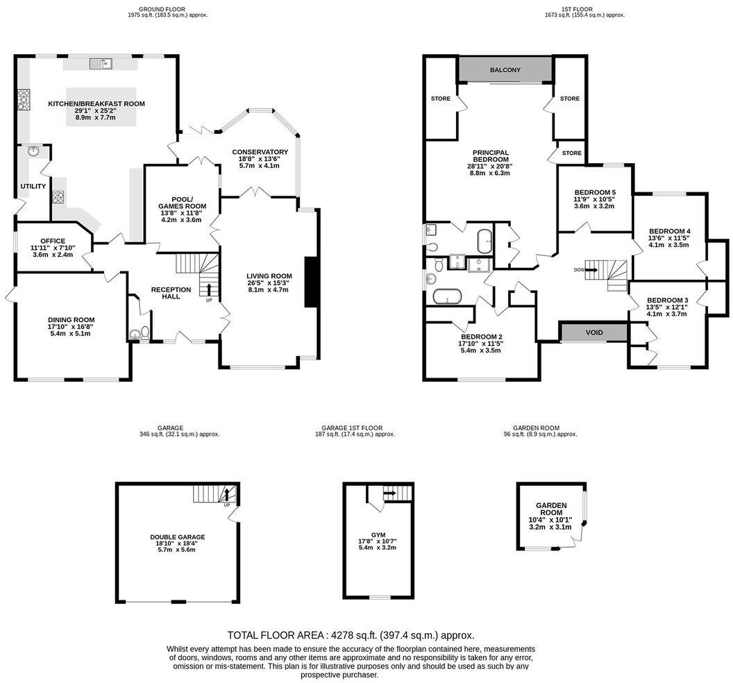
Mulberry House is a spacious, gated five-bedroom detached home set on around half an acre in sought-after North Fambridge. The principal suite includes an en-suite and private balcony with river views; four further double bedrooms and a large family bathroom complete the first floor. Internally the home offers more than 4,000 sq ft including three reception rooms, a study, a striking 29ft kitchen/breakfast room and a recently fitted conservatory opening to an alfresco dining terrace with automated awning.
The property has strong practical features: concrete floors, solid wood doors, hardwood stair, double glazing, three-phase electricity and extensive external lighting. A detached double garage has flexible accommodation above currently used as a gym/studio, and a separate garden room/summerhouse adds outdoor leisure space. Gardens are mature and landscaped with established borders, feature lighting and useful outbuildings.
This house suits families or buyers seeking substantial living and entertaining space with easy access to countryside and estuary amenities. North Fambridge station is a 10–15 minute walk for services to London; local schools include several rated Good at primary and secondary level. The location offers tranquillity and excellent road and rail links while remaining close to the Ferryboat Inn, marina and wildlife reserves.
Notable practical points: heating is oil-fired which can be more expensive and requires regular servicing; council tax is described as quite expensive. Broadband and mobile signals are average. The house was built in 1980 and, while well maintained, may benefit from cosmetic updating in parts to suit modern tastes or energy-efficiency improvements.
5 bedroom detached house for sale in The Gables, North Fambridge CM3 — £1,250,000 • 5 bed • 4 bath • 3875 ft²
5 bedroom detached house for sale in Rectory Road, North Fambridge, CM3 — £950,000 • 5 bed • 3 bath • 2180 ft²
4 bedroom detached house for sale in Station Approach, North Fambridge, Chelmsford, Essex, CM3 — £475,000 • 4 bed • 2 bath • 1550 ft²
5 bedroom detached house for sale in The Avenue, North Fambridge, Chelmsford, CM3 — £1,000,000 • 5 bed • 3 bath • 2700 ft²
4 bedroom detached house for sale in Franklin Road, North Fambridge, CM3 — £700,000 • 4 bed • 1 bath
4 bedroom semi-detached house for sale in Franklin Road, North Fambridge, Chelmsford, CM3 — £650,000 • 4 bed • 2 bath • 1173 ft²


































































































































































































































