Chain-free family home with garage and easy local access.
Three double bedrooms and two reception rooms plus conservatory
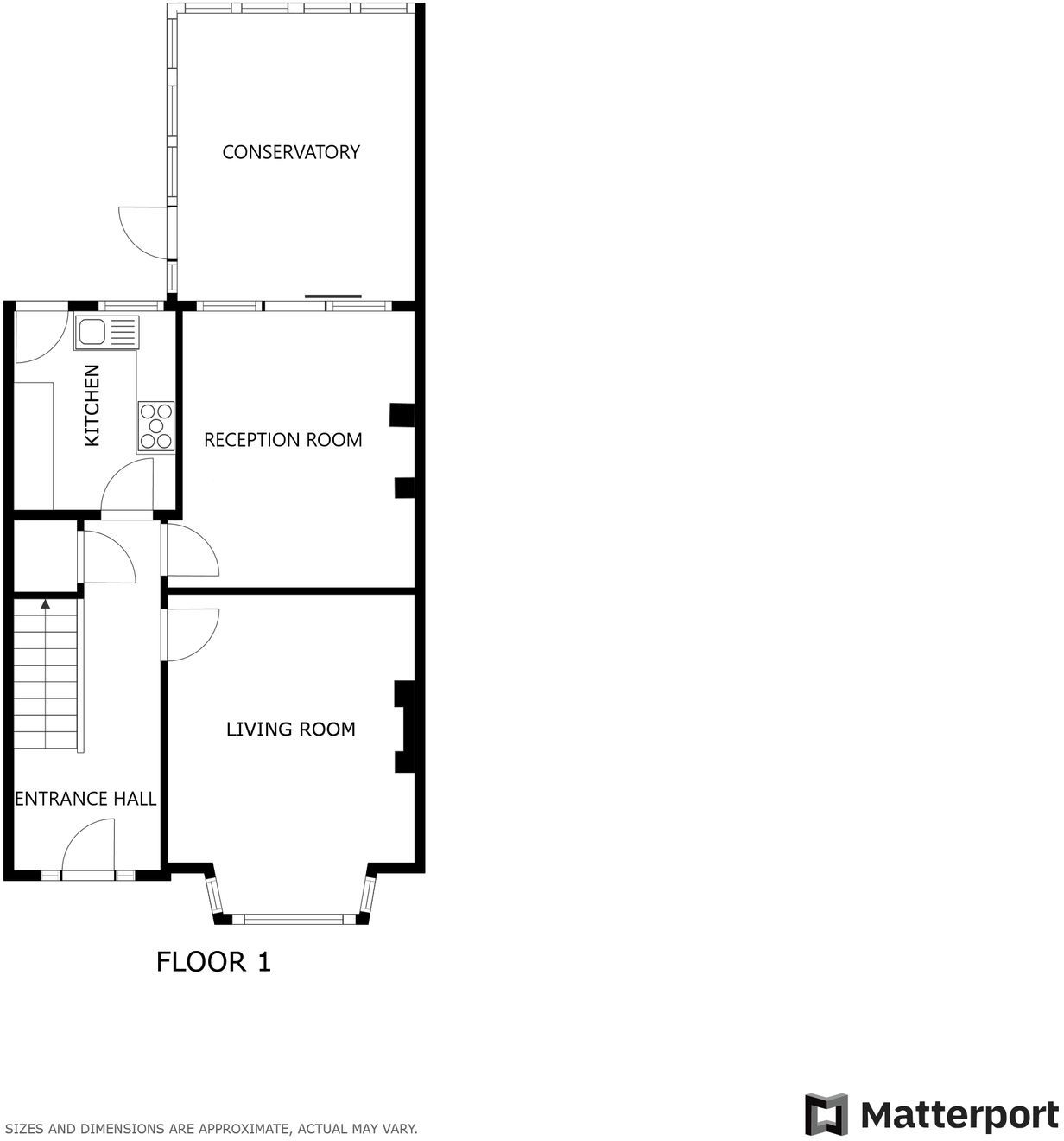
A three-bedroom semi-detached home on Baslow Road offers a practical family layout across about 1,120 sq ft. The ground floor has two reception rooms and a large conservatory that opens onto a mainly slabbed rear garden with two useful outbuildings. Off-street parking and an attached garage add everyday convenience.
Upstairs are three double bedrooms and a single family shower room; the principal bedroom benefits from a built-in shower. The property is double-glazed and served by mains gas central heating. Broadband speeds and mobile signal are reported strong, making the house suitable for home working and family life.
The house was constructed in the 1930s–40s with solid brick walls and is assumed to lack cavity insulation — buyers should factor potential insulation or energy-improvement costs. The plot is modest and low maintenance; the rear garden is mainly slabbed. The area is well served by local amenities, mosques, and several primary and secondary schools within walking distance.
Important sale information: this lot is being sold via a transparent online auction with immediate exchange options. Bidders must complete identity verification and should review the legal pack. Successful buyers face a non-refundable 5% deposit on exchange and a reservation fee (up to 6% inc. VAT, minimum £6,000). Seek independent legal advice and allow for additional purchase costs when budgeting.
3 bedroom semi-detached house for sale in Baslow Road, Evington, Leicester, LE5 — £280,000 • 3 bed • 1 bath • 1119 ft²
4 bedroom semi-detached house for sale in Evington Road, Leicester, Leicestershire, LE2 1HN, LE2 — £345,000 • 4 bed • 2 bath • 1411 ft²
3 bedroom semi-detached house for sale in Evington Parks Road, Evington, Leicester, LE2 — £330,000 • 3 bed • 1 bath • 1033 ft²
4 bedroom semi-detached house for sale in Evington Drive, Evington, Leicester, LE5 — £450,000 • 4 bed • 2 bath • 1475 ft²
3 bedroom semi-detached house for sale in Broad Avenue, North Evington, Leicester, LE5 — £290,000 • 3 bed • 1 bath • 1095 ft²
3 bedroom semi-detached house for sale in 23 Bridevale Road, Leicester, Leicestershire LE2 8DA, LE2 — £159,000 • 3 bed • 1 bath • 851 ft²


















































































