**Standout Features:**
- Spacious four-bedroom semi-detached home
- Generous lounge with stone fireplace and garden access
- Large single garage and ample off-road parking
- Stunning south-facing garden with patio area
- Modern kitchen with utility room and family-friendly layout
- Located in a peaceful, popular village setting
**Summary:**
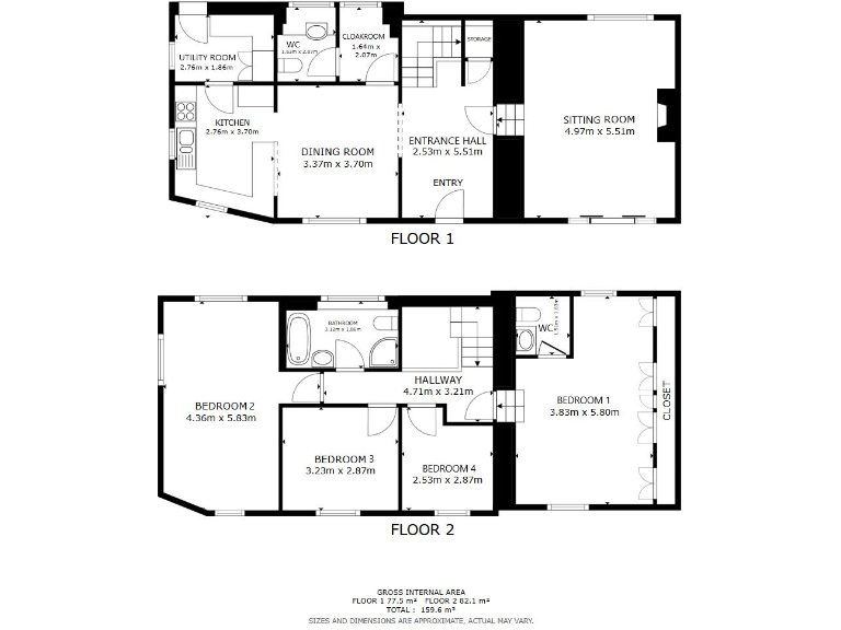
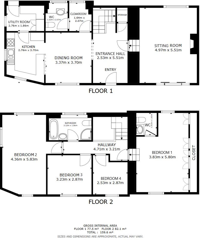
Discover this impressive four-bedroom semi-detached home located on the edge of the picturesque village of Burton in Lonsdale, perfect for families seeking comfort and light. This charming property showcases a blend of traditional stone features and modern conveniences. Step into a bright and airy hallway leading to a spacious lounge with a cozy stone fireplace and sliding doors that open to a spacious south-facing garden – ideal for family gatherings or quiet moments in the sun.
The versatile layout includes a welcoming family dining room, a well-equipped modern kitchen with a practical utility, and a convenient cloakroom. Upstairs, enjoy the comfort of three generous double bedrooms, one with an en suite, alongside a single bedroom and a stylish family bathroom. With a substantial single garage and plenty of off-road parking, this home accommodates all your needs.
The property not only offers breathtaking countryside views but also provides a fantastic community atmosphere. With excellent local amenities including a grocery store, pub, and recreational facilities, as well as proximity to top-rated schools, you’ll find everything necessary for family life right at your doorstep. This is a unique opportunity—properties in this desirable area don’t last long in today’s market, so schedule your viewing today!
3 bedroom link detached house for sale in 16 Manor Close, Burton In Lonsdale, LA6 — £365,000 • 3 bed • 3 bath • 914 ft²
3 bedroom semi-detached house for sale in 6 Chapel Lane, Burton In Lonsdale, Carnforth, LA6 — £235,000 • 3 bed • 1 bath • 848 ft²
8 bedroom detached house for sale in Burton in Lonsdale, Carnforth, North Yorkshire, LA6 — £850,000 • 8 bed • 4 bath • 4650 ft²
4 bedroom terraced house for sale in Church Stile, Burton in Kendal, LA6 — £300,000 • 4 bed • 3 bath • 1145 ft²
4 bedroom detached house for sale in 26 Church Bank Gardens, Burton-in-Kendal, LA6 1NT, LA6 — £350,000 • 4 bed • 2 bath • 1386 ft²
4 bedroom link detached house for sale in Burton Park, Burton in Kendal, LA6 — £325,000 • 4 bed • 1 bath • 1410 ft²






















































































































































