Affordable suburban property with clear scope for value-adding improvement.
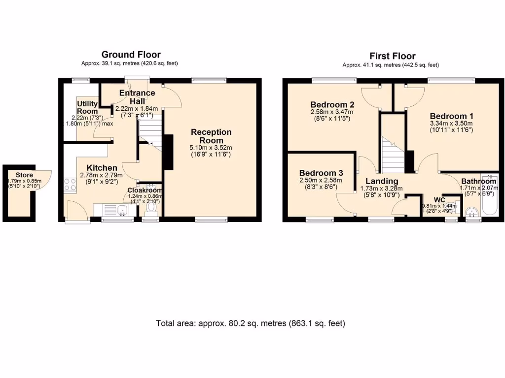
Three bedrooms, family bathroom plus separate ground-floor WC
This three-bedroom end-of-terrace offers affordable entry to Brimington with sensible living space across two storeys. The layout includes a large reception room, kitchen, ground-floor utility and cloakroom, plus two double bedrooms, a single bedroom and family bathroom upstairs. Practical extras include a newly fitted composite front door, gas combi boiler (serviced annually) and uPVC double glazing.
Outside the plot is small but private, with a mature front lawn and a fenced rear garden reached via a side gate. There is a useful outside store with power and lighting and an outside tap — handy for gardening or small DIY projects. On-street parking and good local bus links make commuting to Sheffield, Dronfield and the M1 straightforward.
The house is well suited to first-time buyers, small families or landlords seeking a predictable rental in a residential neighbourhood. It requires modest updating in places to reflect modern tastes; internal finishes are generally serviceable but a renovation programme would increase value significantly. Note the area scores higher on deprivation metrics and the plot is small, which may matter for buyers seeking larger gardens.
Practical details: gross internal area about 80.2 sq m (c. 863 sq ft), Freehold tenure, Energy Rating D, Council Tax Band A. There is no reported flood risk and broadband and mobile signals are strong.
3 bedroom semi-detached house for sale in Downlands, Brimington, Chesterfield, S43 — £160,000 • 3 bed • 1 bath • 978 ft²
2 bedroom end of terrace house for sale in Queen Street, Brimington, Chesterfield, S43 — £145,000 • 2 bed • 1 bath • 632 ft²
3 bedroom semi-detached house for sale in Westmoor Road, Brimington, Chesterfield, S43 — £245,000 • 3 bed • 1 bath • 1162 ft²
3 bedroom semi-detached house for sale in Hereford Drive, Brimington, Chesterfield, S43 — £150,000 • 3 bed • 1 bath • 840 ft²
3 bedroom semi-detached house for sale in The Crescent, Brimington, Chesterfield, S43 — £165,000 • 3 bed • 1 bath • 864 ft²
3 bedroom semi-detached house for sale in Dorset Avenue, Brimington, Chesterfield, Derbyshire, S43 — £165,000 • 3 bed • 2 bath • 838 ft²


































































































