Large plot, attic potential and chain-free sale — ideal for families or downsizers wanting scope to modernise.
Guide price £360,000–£380,000
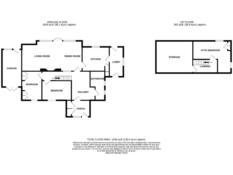
Detached three-bedroom bungalow, approx. 1,200 sq ft
Large 130ft x 50ft plot; 80ft x 50ft secluded rear garden
Parking for four cars plus garage/workshop with conversion potential
Boarded attic bedroom and extra loft space with lighting
Chain free; quick sale possible
Needs updating and some renovation; EPC rating E
Single bathroom and separate WC (limited bathroom provision)
Guide price £360,000–£380,000. This detached three-bedroom bungalow sits on a generous 130ft x 50ft plot in a quiet Orchard Way location, a short walk from Wymondham town centre and highly regarded schools. The property offers about 1,200 sq ft of living space arranged across ground floor accommodation with an attic bedroom and boarded loft space that could be used as additional sleeping or storage.
The well-stocked 80ft rear garden, veranda and patio doors create a strong indoor–outdoor flow for family life and entertaining. Driveways to each side provide parking for up to four cars and there is a garage/workshop with scope for conversion subject to planning. Practical extras include mains gas central heating, double glazing and ultrafast FTTP broadband.
The bungalow is chain free and offers scope to update — some cosmetic and structural renovation work will be needed to modernise rooms and improve energy efficiency (current EPC E). There is a single bathroom and separate WC, so larger families should note the limited bathroom provision. With good road and rail links to Norwich and Cambridge and quick sale potential, the house presents a flexible opportunity for buyers wanting substantial outdoor space and further development potential (subject to approvals).
3 bedroom detached bungalow for sale in Orchard Way, Wymondham, NR18 — £350,000 • 3 bed • 1 bath • 767 ft²
3 bedroom detached bungalow for sale in Fiona Close, Wymondham, Norfolk, NR18 0HB, NR18 — £465,000 • 3 bed • 2 bath • 344 ft²
3 bedroom detached bungalow for sale in Browick Road, Wymondham, NR18 — £450,000 • 3 bed • 1 bath • 1591 ft²
3 bedroom bungalow for sale in Norwich Road, WYMONDHAM, Norfolk, NR18 — £325,000 • 3 bed • 1 bath • 1456 ft²
2 bedroom semi-detached house for sale in Rothbury Road, Wymondham, NR18 — £250,000 • 2 bed • 1 bath • 800 ft²
2 bedroom bungalow for sale in Orchard Way, Wymondham, Norfolk, NR18 — £200,000 • 2 bed • 1 bath • 656 ft²






















































































