PO19 1DE - 2 bedroom terraced house for sale in Orchard Street, Chiche…

View on Property Piper

2 bedroom terraced house for sale in Orchard Street, Chichester, PO19

Summary - 104 ORCHARD STREET CHICHESTER PO19 1DE

2 bed 1 bath Terraced

**Standout Features:**
- Charming two-bedroom terraced cottage with period character
- Central location just a third of a mile from the city center
- Semi open-plan living space with a cozy conservatory
- Walled rear garden with lawn and raised deck area
- First-floor bathroom for added privacy
- Excellent broadband and mobile signal

**Potential Downsides:**
- Close proximity to neighbors in an urban setting
- High local crime rate

Experience the charm of this delightful two-bedroom end terraced cottage on Orchard Street, steeped in history and character. Nestled in the heart of Chichester, this property is conveniently located just a short walk from the city center, appealing to families and professionals alike. The semi open-plan living area creates a warm and inviting atmosphere, flowing into a cozy dining space and complemented by a bright timber-framed conservatory that opens to a mature walled garden—your private oasis in the city.

Upstairs, two well-appointed bedrooms and a practical bathroom offer comfort and privacy, while the appealing front garden adds to your home's curb appeal. Despite being surrounded by a thriving urban landscape, this house provides a tranquil retreat just steps away from amenities, schools, and parks. With room for personalization and improvements, this property is perfect for those looking to make their mark in a sought-after area. Don’t miss out—properties like this in a central location with such character are truly rare!

Property Details

Brochure Descriptions

Image Descriptions

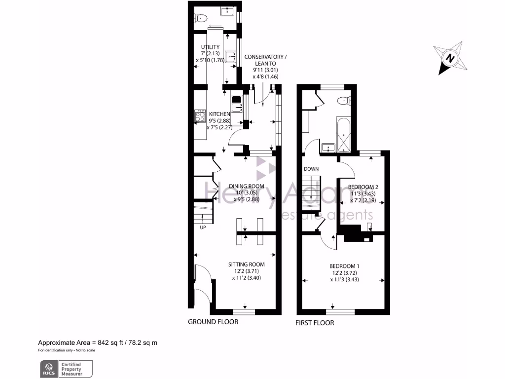
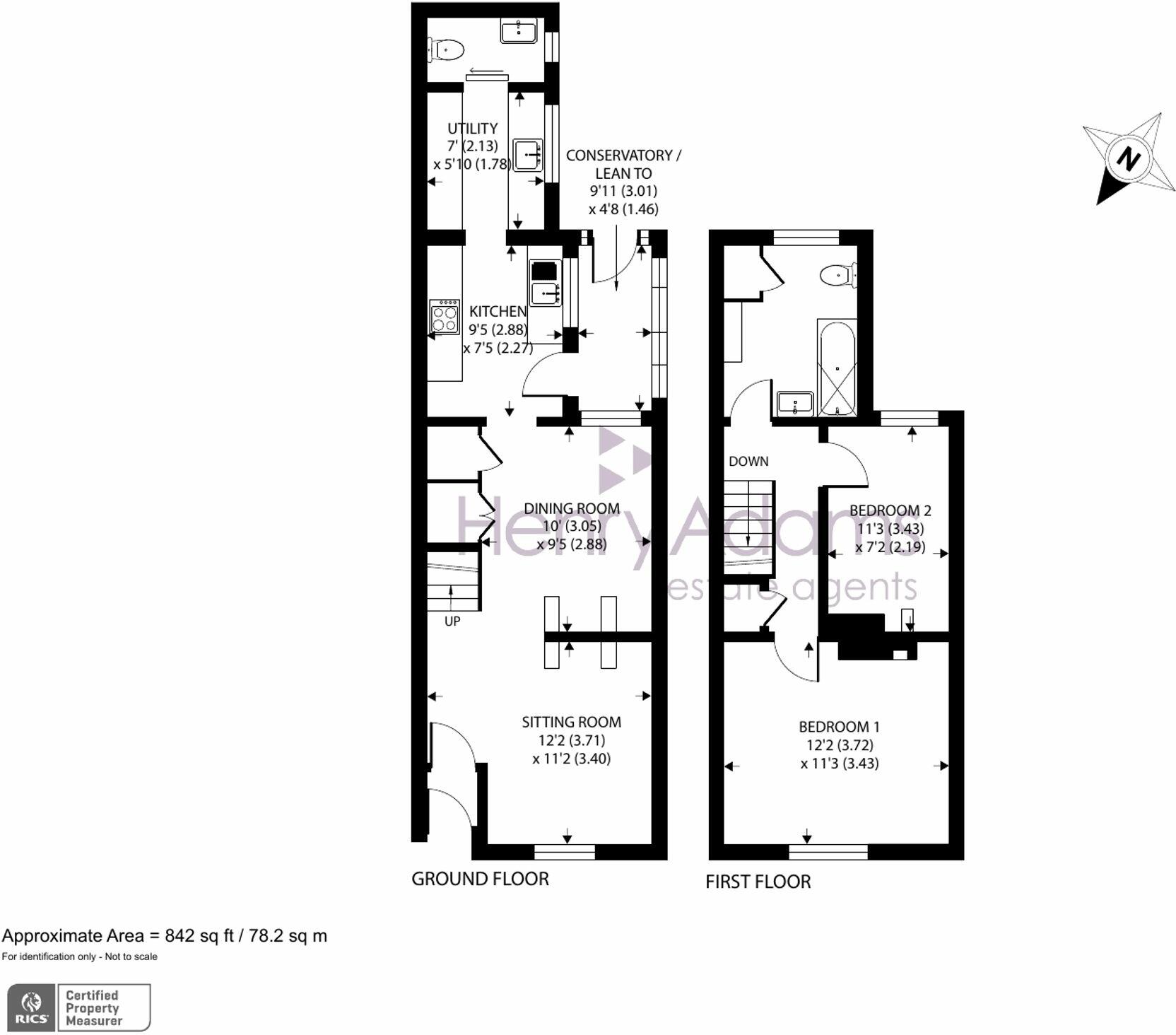
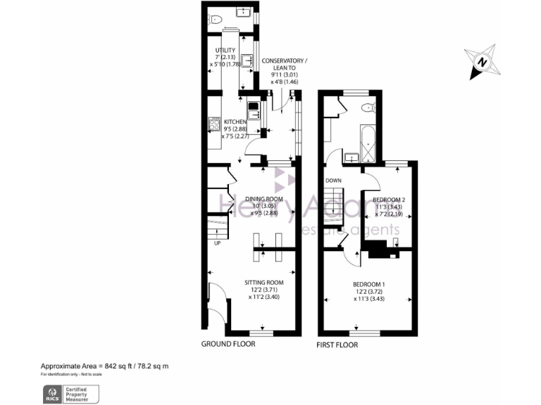
Floorplan Description

Rooms

Textual Property Features

Detected Visual Features

EPC Details

Nearby Schools

Nearest Bars And Restaurants

,,,,}

Nearest General Shops

,,}

Nearest Grocery shops

,,}

Nearest Supermarkets

,,}

Nearest Religious buildings

,,}

Nearest Medical buildings

,,,}

Nearest Airports

}

Nearest Leisure Facilities

,,,,}

Nearest Tourist attractions

,,}

Nearest Train stations

,,,,}

Nearest Bus stations and stops

,,,,}

Nearest Hotels

,,}

Tags

Local Market Stats

AirBnB Data

Similar Properties

Meta

High Res Images

Compatible Images

Low res Images

Thumbnails

Raw Images

High Res Floorplan Images

Compatible Floorplan Images

Low res Floorplan Images

FloorplanImages Thumbnail

Raw Floorplan Images