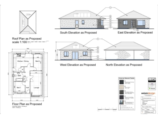
**Standout Features:**
- Newly built two-bedroom detached bungalow
- Contemporary design with modern finishes
- Open-plan kitchen and living area
- Private garden with external access via French doors
- Off-road parking available
- Located in the picturesque village of Patna, East Ayrshire
- Approx. 742 sq ft of practical, family-friendly space
**Potential Concerns:**
- Slow broadband speeds
- Area classified as very deprived
Discover your chance to own a stunning new build bungalow in the charming village of Patna. This two-bedroom property, set against rolling hills, offers a contemporary, open-plan living space perfect for family gatherings. Its well-appointed kitchen features integrated appliances and an island counter, while large windows flood the home with natural light. Two bright bedrooms and a luxurious family bathroom complete the interior layout.
Step outside to your private garden, accessible via French doors, allowing you to embrace indoor-outdoor living. With off-street parking and a neat front garden, this bungalow promises comfortable, low-maintenance living in a tranquil setting—just a 15-minute drive from Ayr. However, it's important to note that the area faces some economic challenges, and broadband options are limited.
Ideal for families or first-time buyers, this property is competitively priced at £220,000 and presents excellent potential for personalization. Don’t miss this opportunity to secure a contemporary sanctuary in a desirable location—it's ready for you in Spring 2026!
2 bedroom bungalow for sale in Plot 1 Fullerton Place, Patna, KA6 7NN, KA6 — £220,000 • 2 bed • 1 bath • 459 ft²
3 bedroom bungalow for sale in Plot 3 Fullerton Place, Patna, South Ayrshire, KA6 7NN, KA6 — £250,000 • 3 bed • 1 bath • 1045 ft²
3 bedroom bungalow for sale in Plot 5 Fullerton Place, Patna, South Ayrshire, KA6 7NN, KA6 — £250,000 • 3 bed • 1 bath • 691 ft²
3 bedroom bungalow for sale in Plot 4 Fullerton Place, Patna, South Ayrshire, KA6 7NN, KA6 — £250,000 • 3 bed • 1 bath • 1120 ft²
3 bedroom detached bungalow for sale in Crosshill Road,
Maybole,
Ayrshire,
KA19 7BN, KA19 — £295,000 • 3 bed • 2 bath • 1184 ft²
3 bedroom semi-detached bungalow for sale in Unit 2, Diamond Cottages, Auchincruive Estate, Near Ayr, KA6 5HN, KA6 — £235,000 • 3 bed • 1 bath • 2778 ft²


























