**Property Highlights:**
- Modern 4-bedroom semi-detached home built in 2015
- Energy-efficient features: air source heat pump, air recovery system, and solar panels
- Stunning views of the Bristol Channel from two balconies
- Spacious open-plan living area with a contemporary kitchen
- Garage with electric car charging point and additional parking space
- Chain-free, making it a quick investment opportunity
- Located in an affluent community with excellent local amenities and schools
This contemporary 4-bedroom semi-detached home in the exclusive Rose Hill development offers both style and comfort, set against the serene backdrop of the Bristol Channel. Boasting high-quality finishes and energy-efficient measures such as solar panels, an air source heat pump, and an air recovery system, this property merges luxury with sustainability.
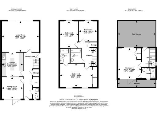
The open-plan living area features majestic floor-to-ceiling windows that flood the space with light, and the kitchen is equipped with modern appliances, including a double oven and induction hob, perfect for culinary enthusiasts. The first floor hosts three spacious double bedrooms, one with a modern en-suite, while the top floor features the luxurious master suite with breathtaking estuary views and direct access to private terraces, ideal for entertaining.
Outside, enjoy a landscaped rear garden with patio areas and additional access to a garage. Situated conveniently close to the vibrant High Street and renowned local pubs, this home combines modern living with accessibility in a leafy suburb that echoes tranquility. With its inviting aesthetics and excellent amenities for families, this property presents an attractive purchase for those seeking a peaceful yet engaging community. Act quickly—properties like this, blending exclusivity, comfort, and energy efficiency, don’t stay on the market for long!
5 bedroom semi-detached house for sale in Sheep Field Gardens, Portishead, North Somerset, BS20 — £725,000 • 5 bed • 3 bath • 2164 ft²
4 bedroom detached house for sale in Rose Hill, Portishead, North Somerset, BS20 — £875,000 • 4 bed • 3 bath • 1906 ft²
4 bedroom terraced house for sale in Guillemot Road, Portishead, Bristol, Somerset, BS20 — £595,000 • 4 bed • 3 bath • 1463 ft²
3 bedroom detached house for sale in Beach Hill, Portishead., BS20 — £865,000 • 3 bed • 2 bath • 1844 ft²
4 bedroom detached house for sale in Hillside Road, Portishead, Bristol, Somerset, BS20 — £1,200,000 • 4 bed • 3 bath • 3012 ft²
5 bedroom house for sale in Nichols Road, Portishead, BS20 — £1,250,000 • 5 bed • 5 bath • 3000 ft²














































































































































































