Energy-efficient new build with garden and driveway, ideal for commuters.
Three bedrooms with en-suite to the master
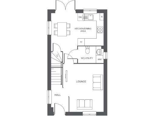
Plot 121, The Usher A, is a contemporary three-bedroom semi-detached home designed for practical family life. The ground floor runs front-to-back with a generous lounge and an open-plan kitchen/diner that opens through French patio doors to a private rear garden — good for everyday living and simple entertaining. The master bedroom includes an en-suite, plus a flexible third room suited to a child’s bedroom or home office.
This new-build home is fitted with integrated kitchen appliances, solar panels and an EV charger, helping reduce running costs in an energy-efficient package. Off-street parking on the driveway and a private garden add useful outdoor and storage space. The property is freehold and has no flooding risk.
Buyers should note the house is new build and compact at around 845 sqft, so room sizes are modest. Measurements are for guidance and may change during construction. The wider Wixams development is modern and expanding, with good road links and local amenities; some nearby schools are rated well while one secondary academy currently requires improvement. Assisted Move and other purchase incentives are available for qualifying reservations.
Overall, this home suits a small family or commuter couple seeking low-running-cost living in a newly built, well-connected community — with the practical caveat of modest internal space and an evolving local development environment.
3 bedroom end of terrace house for sale in Royal Gardens, Wixams, Bedford, MK45 — £375,000 • 3 bed • 2 bath • 815 ft²
3 bedroom terraced house for sale in Royal Gardens, Wixams, Bedford, MK45 — £365,000 • 3 bed • 2 bath • 815 ft²
3 bedroom semi-detached house for sale in Royal Gardens, Wixams, Bedford, MK45 — £395,000 • 3 bed • 2 bath • 1198 ft²
3 bedroom terraced house for sale in Royal Gardens, Wixams, Bedford, MK45 — £390,000 • 3 bed • 2 bath • 1143 ft²
3 bedroom detached house for sale in Royal Gardens, Wixams, Bedford, MK45 — £397,500 • 3 bed • 2 bath • 983 ft²
4 bedroom detached house for sale in Royal Gardens, Wixams, Bedford, Mk45, MK45 — £515,000 • 4 bed • 2 bath • 1361 ft²










































