Large listed retail asset with strong conversion potential for developers or investors.
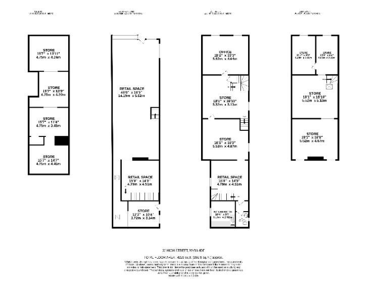
Approx. 3,880 sq ft across three floors plus basement
This substantial Grade II listed building offers a rare central High Street footprint of about 3,880 sq ft over three floors plus basement. The ground floor is open-plan retail with rear sales and basement storage served by a goods lift; upper floors currently provide office/storage space and WCs. The property sits in a prominent pedestrianised position in Bridgnorth’s busy town centre among national and local retailers and benefits from vacant possession on completion.
The accommodation is flexible: retain a ground-floor shop and refurbish upper floors for offices, or pursue residential conversion/subdivision subject to planning and listed‑building consent. The basement and goods lift add practical storage and servicing value for continued retail use or a conversion programme.
Important constraints are practical and regulatory. The Grade II listing and conservation-area location mean repairs, alterations and any conversion will require specialist design and approvals, likely extending timescales and costs. The property is offered freehold at offers in the region of £395,000 and would suit an investor or developer prepared to manage listed‑building works.
Practical notes: on-street parking only; town centre public car park is nearby. There is no notable flood risk. The area has above-average crime statistics, and internal condition and services will need full inspection and likely refurbishment before occupation or conversion.
Plot for sale in High Street, Bridgnorth, Shropshire, WV16 — £240,000 • 1 bed • 1 bath • 2482 ft²
High street retail property for sale in 24 High Street, Bridgnorth, Shropshire, WV16 — £25,000 • 1 bed • 1 bath • 947 ft²
Pub for sale in 52 High Street, Bridgnorth, Shropshire, WV16 — £550,000 • 1 bed • 1 bath • 4182 ft²
Property for sale in High Street, Broseley, TF12 — £125,000 • 1 bed • 1 bath • 991 ft²
Commercial property for sale in High Street, Bridgnorth, WV16 — £614,995 • 1 bed • 1 bath • 2982 ft²
4 bedroom terraced house for sale in St Marys Street, Bridgnorth, WV16 — £750,000 • 4 bed • 3 bath • 2760 ft²


































