Boutique development near South Croydon station and landscaped communal gardens.
Newly built three-bedroom detached house, freehold
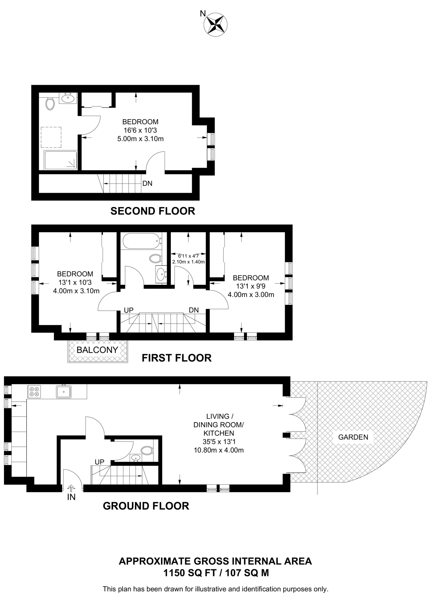
Set within a private road between Selsdon and Farleigh, this newly built three-bedroom detached house blends contemporary finishes with practical family living. The ground floor features porcelain tiles across the open-plan living, dining and kitchen areas; kitchens are finished in Cashmere or Pebble with compact laminate worktops. Each home has its own garden and an allocated off-street parking space, set around attractive landscaped communal grounds.
The location is a strong commuter pick: South Croydon station is around half a mile away with fast services to East Croydon (4 minutes) and London Victoria (about 25 minutes), and Lloyds Park tram link is a short walk. The development of seven boutique homes sits in an affluent, low-crime neighbourhood close to green leisure and equestrian facilities.
Practical notes: the property is freehold and newly renovated/new build, with a generous plot and about 1,150 sq ft of accommodation across multiple storeys. Broadband speeds in the area are reported as very slow, which could affect home working without an upgraded solution. Local schooling is strong overall — several nearby primaries and secondaries are rated Good or better, though one nearby secondary is currently rated Requires Improvement.
Overall this house suits families seeking a modern, low-maintenance home in a quiet, well-connected setting, with scope to personalise interiors and resolve the area’s broadband limitations if remote working is important.
3 bedroom house for sale in Kingswood Way, Sanderstead, South Croydon, CR2 — £685,000 • 3 bed • 2 bath • 1114 ft²
3 bedroom house for sale in Kingswood Way, Sanderstead, South Croydon, CR2 — £655,000 • 3 bed • 2 bath • 1112 ft²
3 bedroom house for sale in Kingswood Way, Sanderstead, South Croydon, CR2 — £655,000 • 3 bed • 2 bath • 1112 ft²
3 bedroom house for sale in Kingswood Way, Sanderstead, South Croydon, CR2 — £650,000 • 3 bed • 2 bath • 1088 ft²
3 bedroom house for sale in Kingswood Way, Sanderstead, South Croydon, CR2 — £675,000 • 3 bed • 2 bath • 1079 ft²
2 bedroom house for sale in Kingswood Way, Sanderstead, South Croydon, CR2 — £500,000 • 2 bed • 2 bath • 836 ft²


























































































