Character-filled family home near shops, schools and Metro.
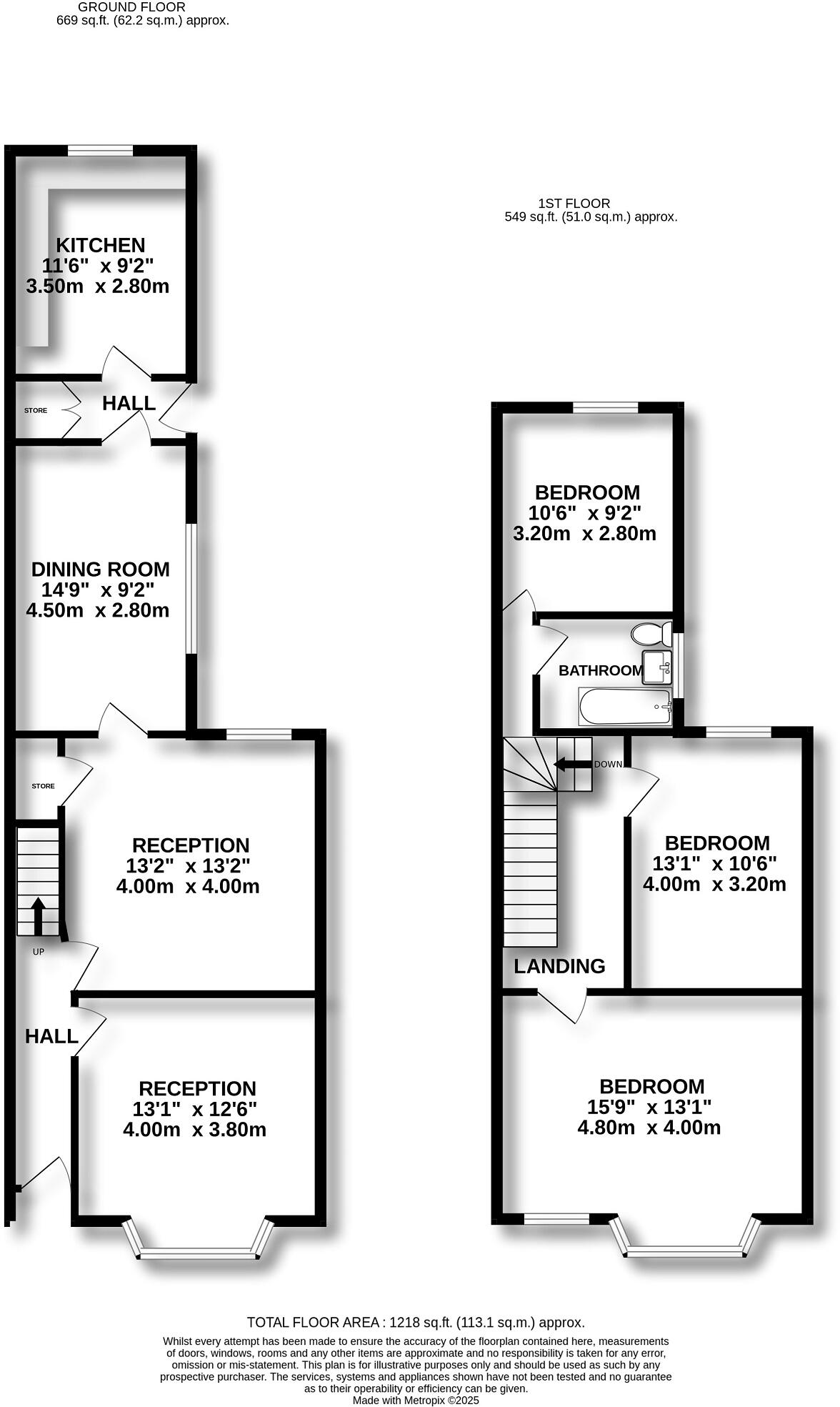
Three double bedrooms in 1,218 sq ft of living space
This attractive three-bedroom Victorian end-of-terrace in Chorlton offers generous living space across multiple reception rooms and 1,218 sq ft of accommodation. Period bay windows, high ceilings and original character sit alongside double glazing and a mains-gas boiler, giving a comfortable family home in an affluent, low-crime neighbourhood.
The extended ground floor provides three reception rooms plus kitchen, while the first floor houses three double bedrooms and a single family bathroom. Outside there is an attractive courtyard garden, a small front garden and useful side space — compact outdoors that are low-maintenance but limited if you need a larger lawn.
Location is a strong selling point: independent shops, cafés and amenities on the doorstep, short walking distance to the Metro station, and zoning for Oswald Road Primary School. Broadband speeds are fast and mobile signal is excellent, supporting home working and family connectivity.
Buyers should be aware this solid-brick home was built c.1900–1929 and is assumed to have no wall insulation, so energy-efficiency improvements may be required. There is only one bathroom and the small plot means external expansion options are limited. Offered freehold with vacant possession, it suits families seeking character in a vibrant area or buyers prepared to modernise selectively.
3 bedroom semi-detached house for sale in Oswald Road, Chorlton Cum Hardy, Manchester, Greater Manchester, M21 — £425,000 • 3 bed • 1 bath • 1098 ft²
3 bedroom terraced house for sale in Lynton Road, Chorlton, M21 — £450,000 • 3 bed • 2 bath • 1100 ft²
4 bedroom terraced house for sale in Cleveleys Avenue, Chorlton, M21 — £495,000 • 4 bed • 1 bath • 1225 ft²
3 bedroom terraced house for sale in York Avenue, Whalley Range, M16 — £330,000 • 3 bed • 1 bath • 1010 ft²
3 bedroom terraced house for sale in St. Annes Road, Chorlton, M21 — £495,000 • 3 bed • 1 bath • 1270 ft²
3 bedroom terraced house for sale in Limley Grove, Chorlton, M21 — £495,000 • 3 bed • 2 bath • 1320 ft²


































































