Large garden, parking and nearby good schools — comfortable family base.
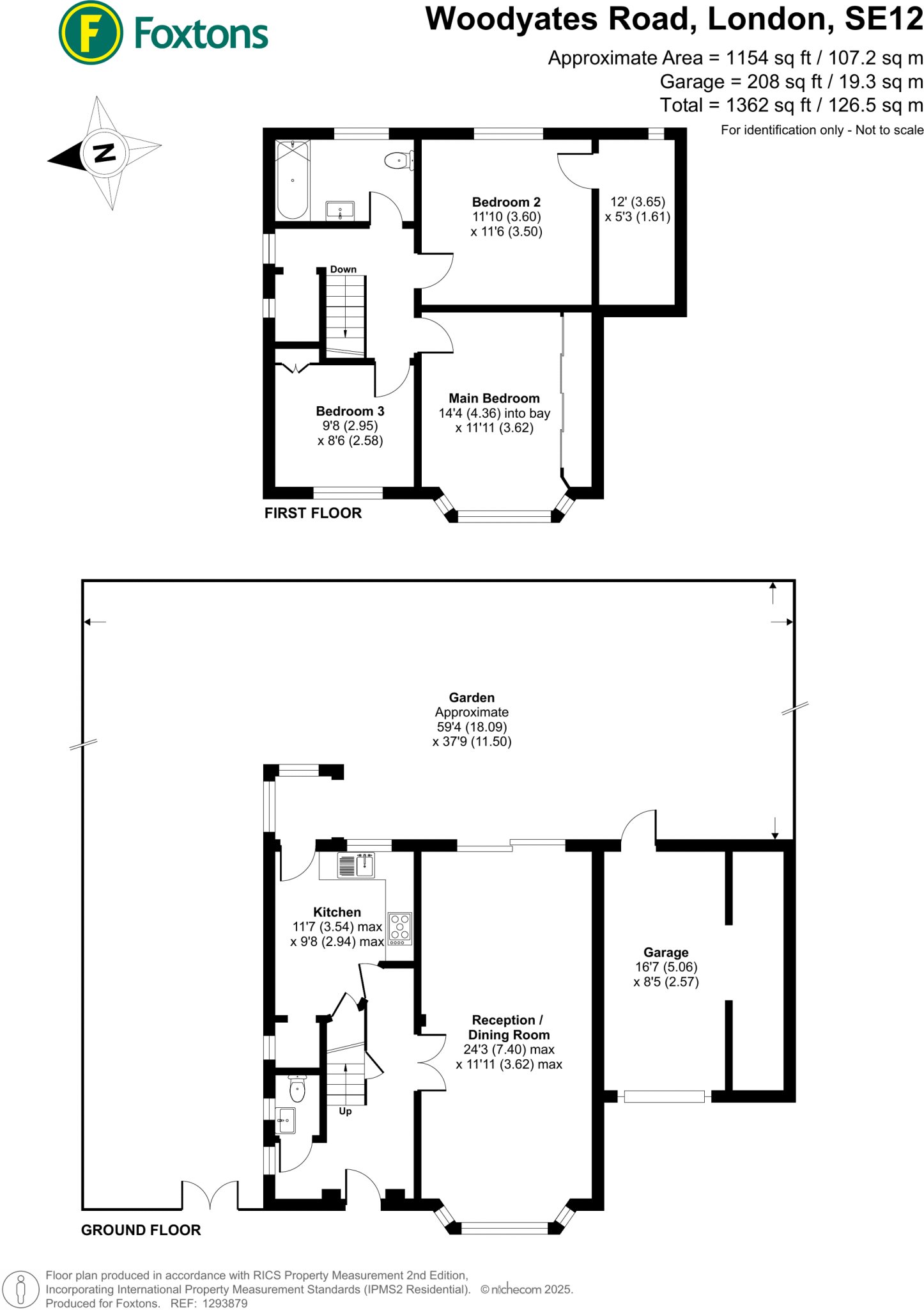
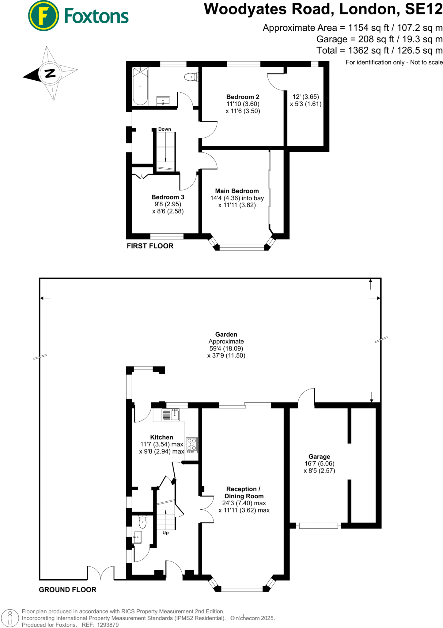
Large rear garden ideal for entertaining or family play
Off-street driveway parking for one vehicle
Double reception room with space for dining
Modern kitchen with integrated appliances included
Three well-proportioned bedrooms across two floors
Single family bathroom upstairs plus a downstairs WC
Built c.1930s with solid brick walls; likely needs insulation upgrade
Freehold, 1,362 sq ft — generous internal space for area
This spacious three-bedroom home on Woodyates Road offers generous family living across two floors with a large rear garden and off-street parking. The double reception room provides flexible living and dining space, while the modern fitted kitchen includes integrated appliances for immediate convenience. At about 1,362 sq ft, the house feels notably larger than many local alternatives and is sold freehold.
The property sits in a well-connected part of Lee with good primary and secondary schools nearby, reliable transport links and fast broadband — practical advantages for working households and children. The plot is large and private, giving scope for entertaining, play space or garden projects.
Buyers should note the house dates from the 1930s and has solid brick walls with no known cavity insulation; upgrading insulation and possibly windows/wall insulation could improve comfort and running costs. There is a single family bathroom upstairs plus a downstairs WC, which some larger households may find limiting. The surrounding area scores as deprived on local indices despite low crime; that can influence longer-term value considerations.
Overall this is a roomy, characterful family home in a convenient Lewisham pocket that will suit buyers wanting immediate move-in with sensible updating potential, or those seeking a straightforward renovation project to add efficiency and value.
4 bedroom semi-detached house for sale in Woodyates Road, Lee, London, SE12 — £850,000 • 4 bed • 2 bath • 1431 ft²
3 bedroom detached house for sale in Woodyates Road, London SE12 — £800,000 • 3 bed • 1 bath • 1155 ft²
3 bedroom detached house for sale in Woodyates Road, Lee, SE12 — £800,000 • 3 bed • 1 bath • 1185 ft²
3 bedroom semi-detached house for sale in Linchmere Road, Lee, SE12 — £625,000 • 3 bed • 2 bath • 1184 ft²
3 bedroom end of terrace house for sale in Abergeldie Road, Lee, SE12 — £750,000 • 3 bed • 1 bath • 1200 ft²
3 bedroom end of terrace house for sale in Westdean Avenue, Lee, SE12 — £500,000 • 3 bed • 1 bath • 863 ft²














































































































































































