Spacious living close to Dulwich parks and top schools.
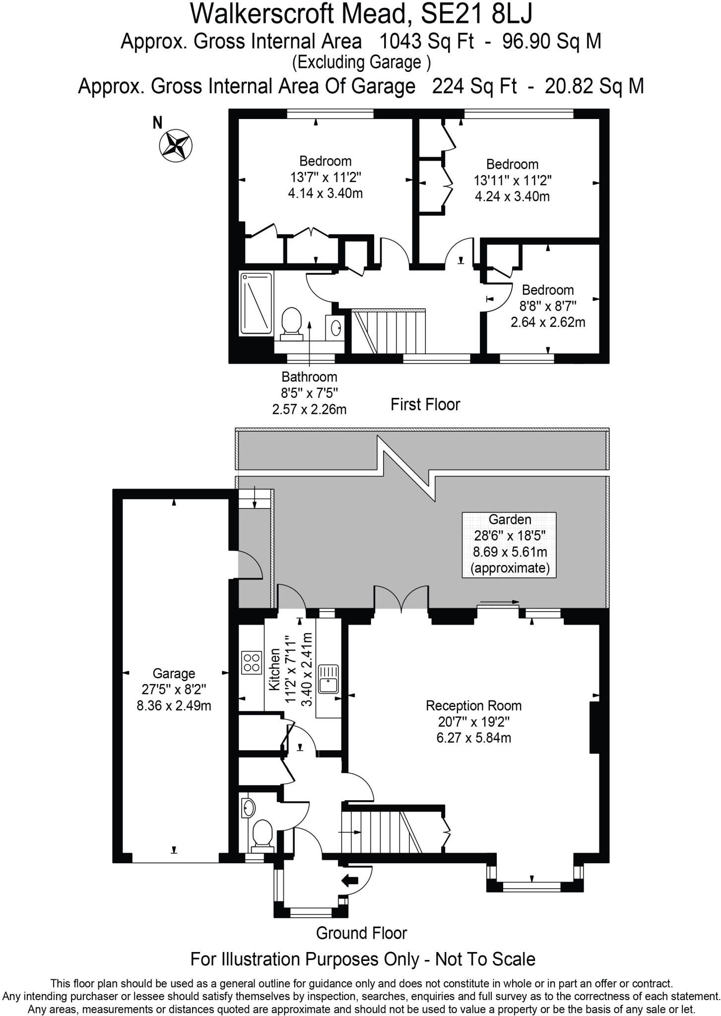
Three double bedrooms across two floors, plenty of natural light
Large open-plan reception/dining ideal for family entertaining
Private, not-overlooked rear garden with patio; small urban plot
Long garage offers substantial storage or workshop space
Off-street parking in a quiet cul-de-sac near local amenities
Single family bathroom only; may be limiting for larger families
Council tax is expensive; budget for higher ongoing costs
Local crime rate above average — check security and neighbourhood
This well-proportioned three-bedroom semi-detached house in SE21 offers light, versatile living across two floors — ideal for families seeking space close to Dulwich amenities. The ground floor is dominated by a large open-plan reception and dining area with generous natural light and timber-effect floors, flowing to a private, not-overlooked rear garden suited to informal entertaining and children’s play.
Upstairs are three double bedrooms and a single family bathroom; built-in storage is plentiful and the long garage provides exceptional additional space for a workshop, bikes or parking. The home sits in a quiet cul-de-sac with off-street parking and is within easy reach of good schools, parks and strong transport links, making daily life convenient for commuting families.
Buyers should note the property has only one bathroom and the council tax band is expensive. Crime in the immediate area is above average; prospective purchasers should satisfy themselves on local safety and security measures. Internal condition and precise dimensions should be verified at inspection — some buyers may choose modest updating to personalise the mid-century contemporary finishes.
5 bedroom semi-detached house for sale in Rosendale Road, London, SE21 — £1,500,000 • 5 bed • 3 bath • 2674 ft²
5 bedroom terraced house for sale in Rosendale Road, West Dulwich, SE21 — £1,650,000 • 5 bed • 3 bath • 1873 ft²
4 bedroom house for sale in Rosendale Road, London, SE21 — £1,500,000 • 4 bed • 2 bath • 2067 ft²
5 bedroom semi-detached house for sale in Clive Road, London, SE21 — £1,200,000 • 5 bed • 2 bath • 1576 ft²
5 bedroom semi-detached house for sale in South Croxted Road, West Dulwich, London, SE21 — £1,250,000 • 5 bed • 1 bath • 2061 ft²
3 bedroom house for sale in Alleyn Crescent, Dulwich, London, SE21 — £950,000 • 3 bed • 2 bath • 1327 ft²






































































