**Standout Features:**
- Modern one double bedroom apartment
- Located in the prestigious Centre Heights development
- High-quality finishes including quartz fixtures
- Open plan reception and fully integrated contemporary kitchen
- Underfloor heating and cooling system
- Concierge service and passenger lift
- Close proximity to Swiss Cottage Underground Station (Jubilee Line)
- Excellent rental potential due to prime urban location
**Concerns:**
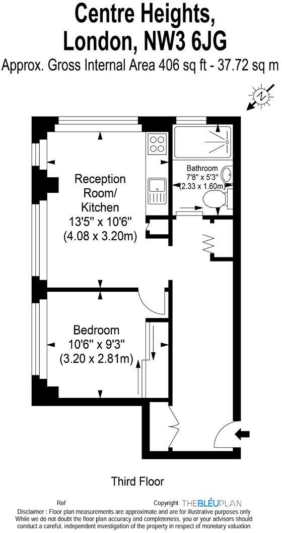
- Compact size with a total area of 406 sq ft
- Above-average service charge of £5,200
- High local crime rates
This stylish one-bedroom apartment in the sought-after Centre Heights development offers a modern urban lifestyle at an attractive price of £395,000. With high-spec finishes throughout, including a sleek open plan kitchen with integrated appliances and a cozy yet functional living area, this home is ideal for professional individuals or couples seeking comfort and convenience. Enjoy the benefits of underfloor heating, soundproofing, and a dedicated concierge service, enhancing accessibility and security.
Situated in the vibrant community of Swiss Cottage, you are just steps away from an array of amenities and excellent public transport connections, making it a prime choice for both living and investment. However, potential buyers should be aware of the compact size and the above-average service charge, along with the local area's higher crime rate. This apartment is not just a property; it’s an opportunity for a modern, city-living experience—ideal for first-time buyers or investors looking for high rental yields in a cosmopolitan neighborhood. Don’t miss out on this exclusive offering; schedule your viewing today!
1 bedroom apartment for sale in Swiss Terrace, Swiss Cottage, NW6 — £625,000 • 1 bed • 1 bath • 602 ft²
3 bedroom apartment for sale in 137 Finchley Road, London, NW3 — £515,000 • 3 bed • 2 bath • 793 ft²
1 bedroom apartment for sale in Winchester Road, Swiss Cottage, NW3 — £620,000 • 1 bed • 2 bath • 696 ft²
1 bedroom flat for sale in Winchester Road, London, NW3 — £600,000 • 1 bed • 1 bath • 534 ft²
2 bedroom apartment for sale in Visage Apartments, Winchester Road, Swiss Cottage, NW3 — £625,000 • 2 bed • 2 bath • 860 ft²
3 bedroom apartment for sale in Visage Apartments, Winchester Road, Swiss Cottage, London, NW3 — £1,495,000 • 3 bed • 2 bath • 1352 ft²


































