Charming two-bed stone cottage backing onto open fields — character and countryside access.
Stone-built end-terrace with attractive rural views front and rear
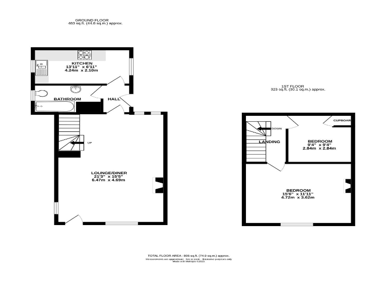
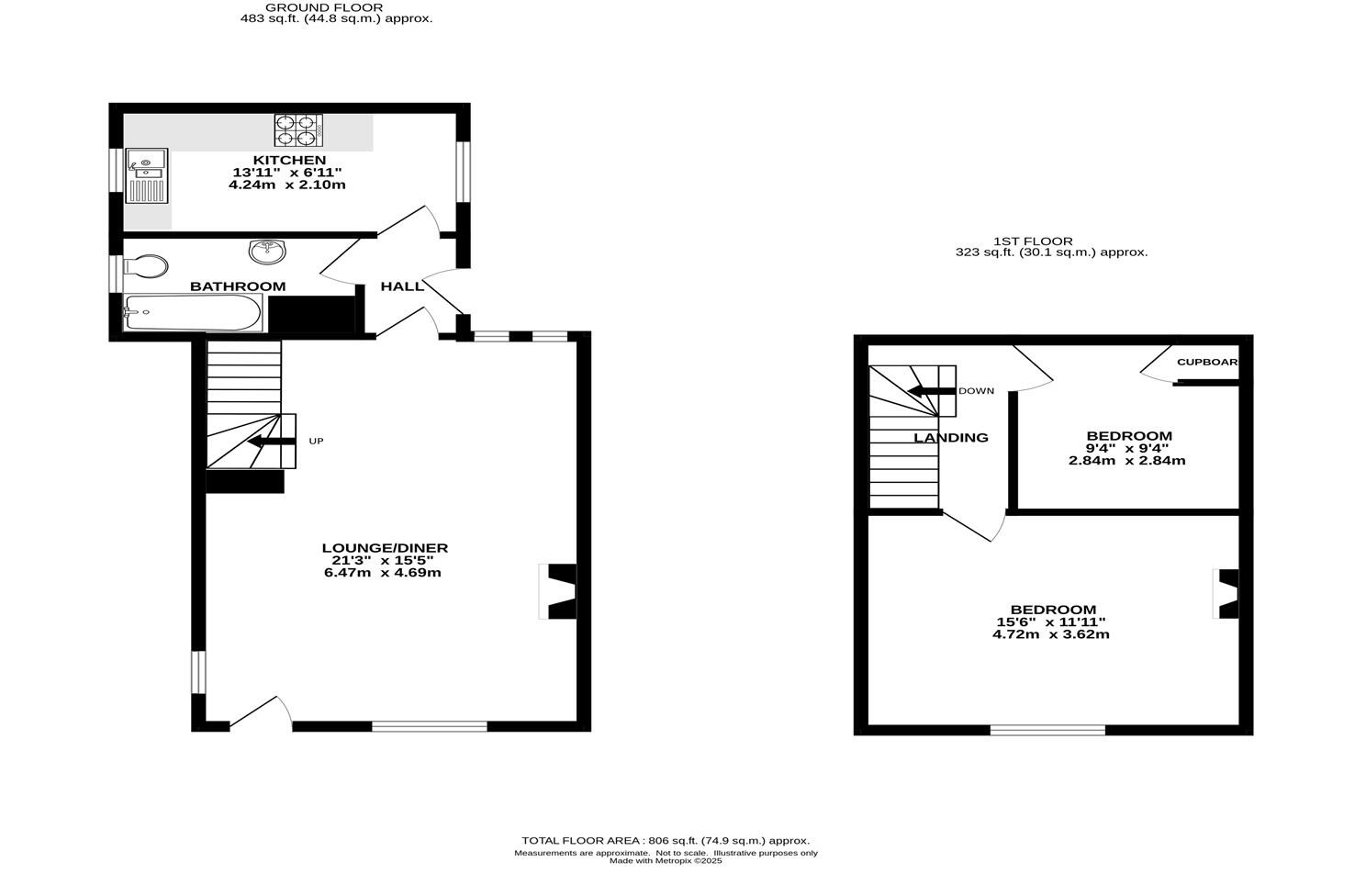
Dual-aspect lounge/diner with exposed beams and feature fireplace
Two bedrooms, compact footprint suited to couple or single household
Front, side and rear gardens; side garden backs onto open fields
Potential damp/older stonework — professional inspection recommended
Double glazing installed before 2002; likely limited wall insulation
Medium flood risk for the area; services and utilities untested
Freehold tenure; low council tax and good local school catchment
This stone-built end-terrace cottage sits in a much-loved Whitehough location with open-field views to the front and rear. The property offers a dual-aspect lounge/diner, fitted kitchen, bathroom and two bedrooms across a compact two-storey layout — ideal for a first home, holiday base or rental let.
The setting is a major draw: peaceful, semi-rural streets, immediate access to countryside walks and good train links from Chinley to Manchester and Sheffield. Front, side and rear gardens give private outdoor space, while the side garden looks directly onto open pasture.
Buyers should note the cottage’s modest internal footprint and small plot size — best suited to a single household or couple. The house shows traditional construction with likely limited wall insulation and older double glazing (pre-2002); there are signs of potential damp in stonework areas which should be inspected. Flood risk is rated medium; services have not been tested and any purchaser should obtain professional surveys.
Overall this property offers character, outlook and a desirable village location. With light updating and attention to insulation and any damp issues, it presents clear potential as a comfortable first home or a countryside let for those seeking outdoor access and good transport links.
 1 bedroom terraced house for sale in Whitehough, Chinley, SK23 — £265,000 • 1 bed • 1 bath • 642 ft²
 1 bedroom terraced house for sale in Whitehough, Chinley, SK23 — £265,000 • 1 bed • 1 bath • 642 ft² 2 bedroom terraced house for sale in Whitehall Terrace, Chinley, High Peak, SK23 — £239,995 • 2 bed • 1 bath • 558 ft²
 2 bedroom terraced house for sale in Whitehall Terrace, Chinley, High Peak, SK23 — £239,995 • 2 bed • 1 bath • 558 ft² 2 bedroom cottage for sale in Whitehough, Chinley, SK23 — £280,000 • 2 bed • 1 bath • 1033 ft²
 2 bedroom cottage for sale in Whitehough, Chinley, SK23 — £280,000 • 2 bed • 1 bath • 1033 ft² 2 bedroom terraced house for sale in New Smithy, Chinley, SK23 — £289,950 • 2 bed • 1 bath • 829 ft²
 2 bedroom terraced house for sale in New Smithy, Chinley, SK23 — £289,950 • 2 bed • 1 bath • 829 ft² 3 bedroom cottage for sale in Leaden Knowle, Chinley, SK23 — £340,000 • 3 bed • 1 bath • 850 ft²
 3 bedroom cottage for sale in Leaden Knowle, Chinley, SK23 — £340,000 • 3 bed • 1 bath • 850 ft² 4 bedroom detached house for sale in Whitehough, Chinley, High Peak, SK23 — £685,000 • 4 bed • 1 bath • 1778 ft²
 4 bedroom detached house for sale in Whitehough, Chinley, High Peak, SK23 — £685,000 • 4 bed • 1 bath • 1778 ft²


































































