**Standout Features:**
- **Versatile Layout:** Converted into 3 separate living units (3-bedroom maisonette + 2 one-bedroom flats).
- **Investment Opportunity:** Currently generating over 9% yield via Airbnb.
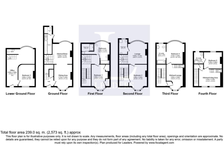
- **Size:** Spacious property with 2,573 sq. ft., ideal for families or multi-generational living.
- **Location:** Close to the beach, local amenities, and public transport routes.
- **Private Outdoor Space:** Includes a small private garden.
- **Freehold & Chain Free:** Ready for immediate occupation or investment.
**Summary:**
Discover a remarkable investment opportunity in the heart of Brighton with this expansive Victorian terraced property. Offering an impressive 2,573 sq. ft. of potential, this residence is currently configured into three income-generating apartments, making it ideal for savvy investors or families seeking multi-generational living. Enjoy the benefits of a private outdoor space as well as proximity to the vibrant seaside, cafes, and excellent public transport connections.
While the property is well-maintained and ready for use, potential buyers should consider future renovation possibilities to enhance the existing layout or add additional value. The area, characterized by high student and commuter traffic, assures high demand for rental options. Don’t miss this unique chance to own a versatile property in one of Brighton's most desirable neighborhoods—schedule your viewing today and unlock the financial potential that awaits!
9 bedroom terraced house for sale in Charlotte Street, Brighton, BN2 — £1,200,000 • 9 bed • 5 bath • 2482 ft²
6 bedroom terraced house for sale in White Street, Brighton, BN2 — £500,000 • 6 bed • 2 bath • 1409 ft²
3 bedroom terraced house for sale in Broad Street, Brighton, BN2 — £600,000 • 3 bed • 2 bath • 1265 ft²
4 bedroom end of terrace house for sale in Egremont Place, Brighton, BN2 — £750,000 • 4 bed • 5 bath • 1453 ft²
4 bedroom house for sale in Egremont Place, Kemptown, Brighton, BN2 — £750,000 • 4 bed • 5 bath • 1317 ft²
6 bedroom house for sale in Montpelier Road, Brighton, East Sussex, BN1 — £650,000 • 6 bed • 3 bath • 1475 ft²


















































