Substantial grounds and barn near the New Forest for restoration enthusiasts.
Grade II listed five-bedroom detached house with strong period character
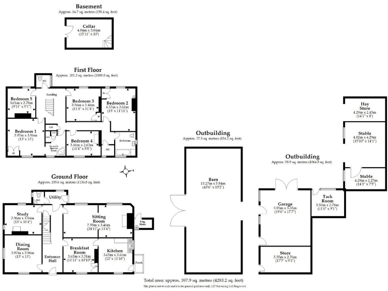
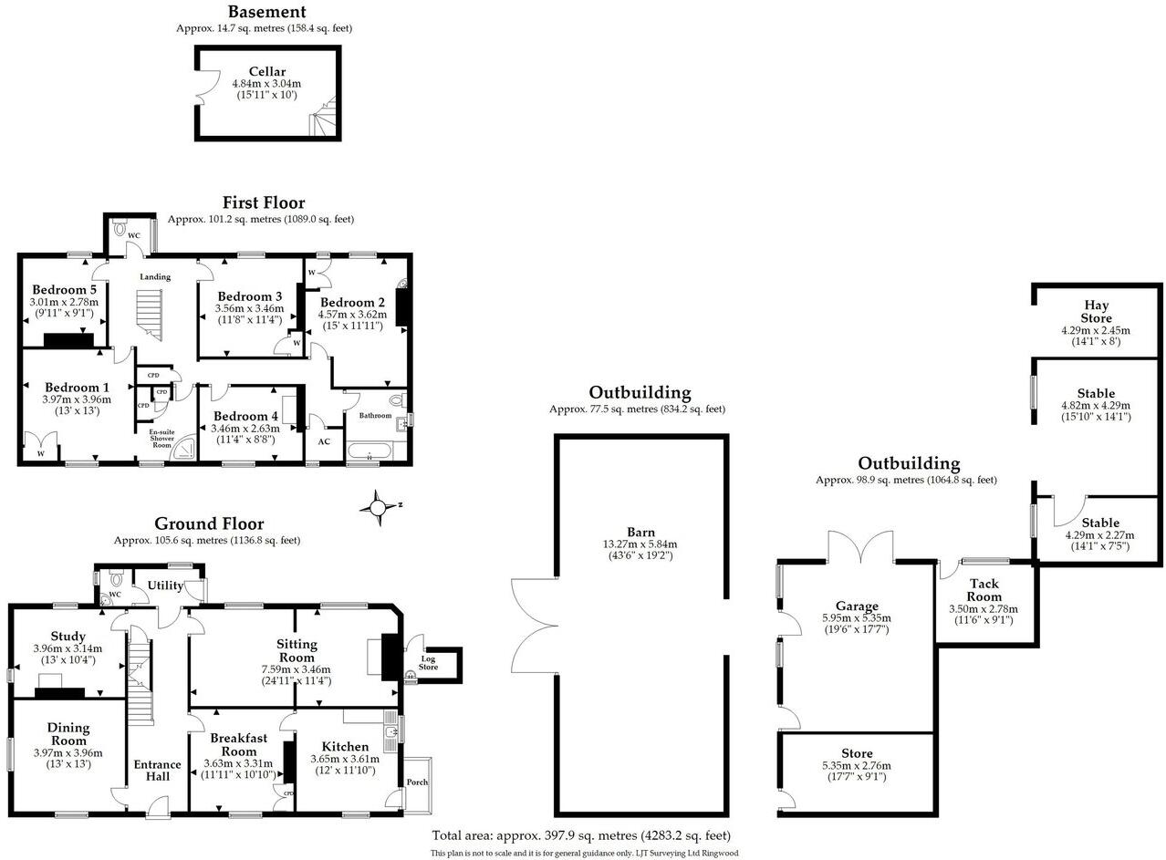
Set on almost two acres at the edge of Ringwood, this Grade II listed five-bedroom house offers a rare combination of period character and significant scope for updating. The main house has had a new roof recently replaced, and many original features remain, including a substantial oak-framed listed barn and versatile equestrian outbuildings.
The property is a renovation project: services, finishes and layout will need renewal to meet modern expectations. Listed status means repairs and alterations will require specialist consent and may increase costs and timescales. Broadband is noted as slow, which may affect remote working without investment in alternatives.
For families or buyers seeking a countryside lifestyle, the gardens, paddocks and immediate access to the New Forest provide strong lifestyle appeal and excellent outdoor space for children, animals or leisure. The house is freehold, sizeable (approximately 4,283 sq ft) and previously lived in by one family for over forty years, providing scope to restore period detail while creating contemporary living spaces.
Serious buyers should note this is offered for proceedable offers only. The property’s scale, listed elements and outbuildings present clear potential but require a realistic budget and experience with heritage renovation.
4 bedroom detached house for sale in Cowpitts Lane, Ringwood, BH24 — £1,395,000 • 4 bed • 3 bath • 2000 ft²
4 bedroom detached house for sale in Crow Hill, Crow, Ringwood, BH24 — £1,495,000 • 4 bed • 2 bath • 3995 ft²
4 bedroom detached house for sale in Rockford, Ringwood, BH24 — £3,000,000 • 4 bed • 3 bath • 5000 ft²
4 bedroom detached house for sale in Crow Hill, Crow, Ringwood, Hampshire, BH24 — £1,495,000 • 4 bed • 2 bath • 3995 ft²
4 bedroom detached house for sale in Forest Edge Road, Crow, Ringwood, Hampshire, BH24 — £1,600,000 • 4 bed • 3 bath • 3395 ft²
4 bedroom country house for sale in Rockford, Ringwood, BH24 3NA, BH24 — £1,295,000 • 4 bed • 3 bath • 1698 ft²






























































































