Move-in ready home with large private garden and easy commuter links.
Chain-free three-bedroom end-terrace, newly renovated throughout
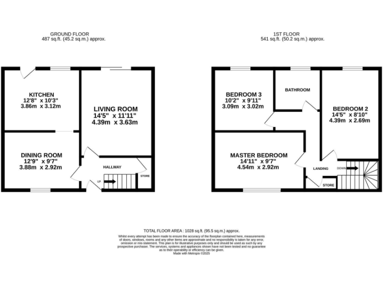
A newly renovated three-bedroom end-terrace offered chain-free, this mid-20th century home delivers ready-to-move-in accommodation in the heart of Kettering. The living room opens via sliding glass doors onto a large enclosed rear garden; the adjoining dining room and fitted kitchen include integrated appliances for immediate use. At about 1,028 sq ft the layout suits first-time buyers who need space without major works.
Practical advantages include double glazing fitted after 2002, mains gas central heating with a modern boiler and radiators, an EPC rating of C, and very low council tax (Band A). Kettering town centre and the station are a short walk away, offering frequent rail links and a wide range of amenities within easy reach.
Buyers should note the local context: the area records high crime levels and significant deprivation, which may affect resale and community feel. The property’s solid brick construction likely lacks cavity wall insulation, so additional insulating work could be needed to improve long-term running costs despite the current EPC.
Overall this property suits a first-time buyer seeking a move-in-ready home with generous outdoor space and good transport links, while being realistic about local social challenges and potential insulation improvements.
3 bedroom terraced house for sale in Ford Street, Kettering, NN16 — £210,000 • 3 bed • 1 bath • 700 ft²
3 bedroom terraced house for sale in Bath Road, Kettering, NN16 — £215,000 • 3 bed • 1 bath • 915 ft²
3 bedroom end of terrace house for sale in Centre Parade, Kettering, NN16 — £210,000 • 3 bed • 2 bath • 743 ft²
3 bedroom end of terrace house for sale in Russell Street, Kettering, Northamptonshire, NN16 — £190,000 • 3 bed • 1 bath • 842 ft²
3 bedroom semi-detached house for sale in Cambridge Street, Kettering, Northamptonshire, NN16 — £209,000 • 3 bed • 1 bath • 962 ft²
3 bedroom terraced house for sale in Tailby Avenue, Kettering, NN16 — £235,000 • 3 bed • 1 bath • 648 ft²


















































































