Two-bedroom seaside semi with garage and extra parking close to Camber beach..
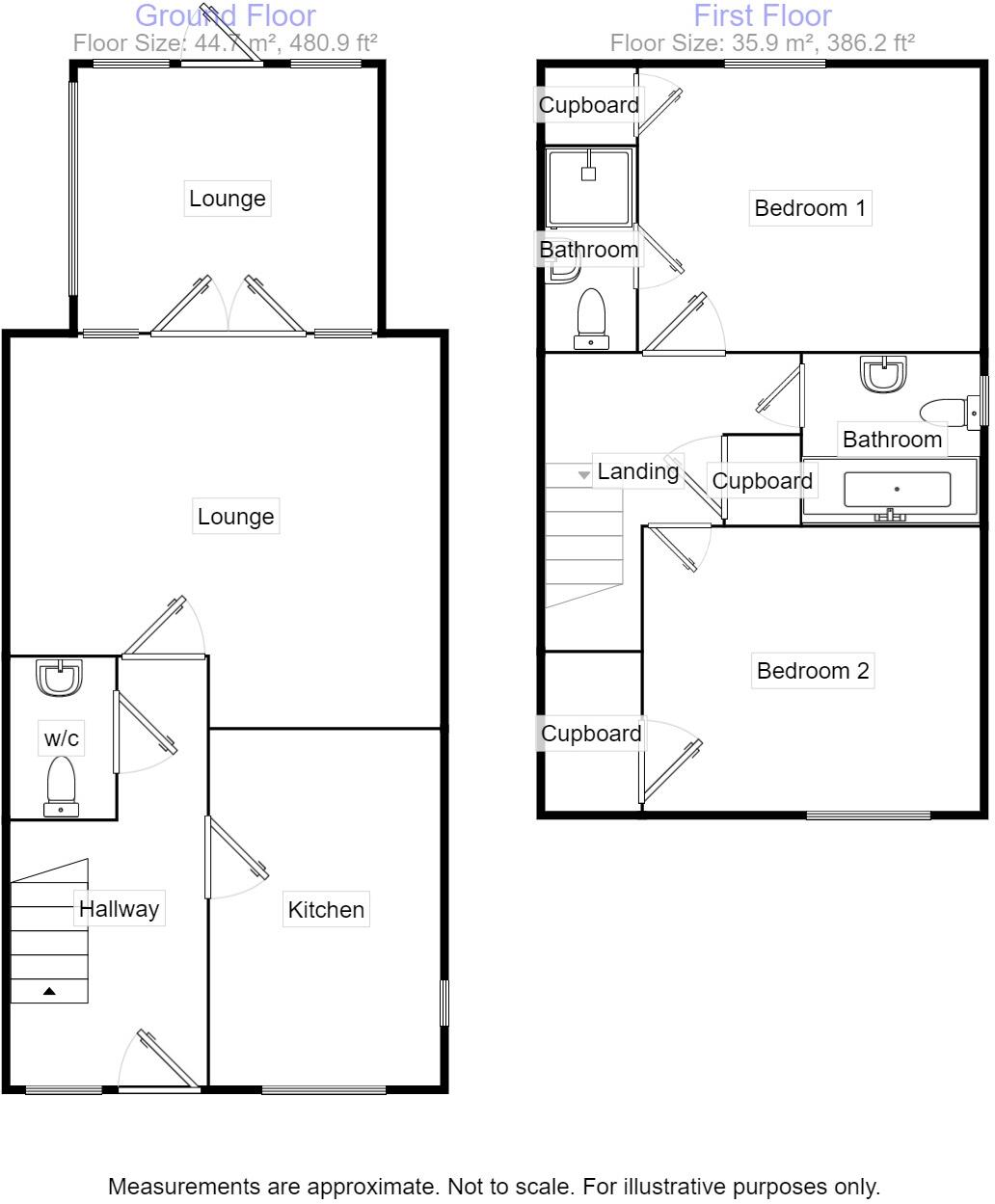
- Two bedrooms, lounge, conservatory and kitchen/breakfast room
- Single garage plus extra outside space for camper parking
- New boiler and Hive heating control fitted in 2023
- Low‑maintenance rear garden with decking and privacy hedging
- Heating fuel: LPG (not connected to mains gas)
- EPC rating D; some efficiency improvements possible
- Small plot — limited scope for substantial garden extension
- Local area: very deprived indicators and above‑average crime
Set on the white‑sand development a short walk from Camber beach, this well-presented two-bedroom semi offers a straightforward coastal base for a first home or holiday use. The ground floor combines a bright lounge and conservatory with a kitchen/breakfast area, giving flexible living space and easy indoor–outdoor flow. An additional reception/utility area and single garage add practical storage and parking options.
The property has been updated recently with a new boiler and Hive heating control in 2023, and the ground floor floors are tiled for easy maintenance. Outside, the rear garden is low‑maintenance decking with privacy hedging; there is also extra outside space suitable for a camper van or additional garden/parking. The plot is small, which keeps upkeep minimal but limits outdoor expansion.
Buyers should note practical constraints: heating runs on LPG (not mains gas), the EPC is grade D, and the postcode area records higher-than-average crime and local deprivation indicators. Despite these factors, the house is freehold, in good decorative order and sits in a quiet village setting with fast broadband and excellent mobile signal — useful for remote working or holiday lets.
This home suits a buyer seeking a manageable, coastal property ready to occupy with minimal immediate works, or an investor targeting short-term holiday income. Viewings are recommended to appreciate the location, garage, and flexible outside space near Camber beach.
2 bedroom semi-detached house for sale in Whitesand Drive, Camber, Rye, East Sussex, TN31 — £299,950 • 2 bed • 1 bath • 655 ft²
3 bedroom semi-detached house for sale in New Lydd Road, Camber, East Sussex, TN31 — £315,000 • 3 bed • 1 bath • 1152 ft²
2 bedroom coach house for sale in Badger Way, Camber, TN31 — £255,000 • 2 bed • 1 bath • 732 ft²
3 bedroom terraced house for sale in Pelwood Road, Camber, Rye, TN31 — £265,000 • 3 bed • 1 bath • 905 ft²
3 bedroom semi-detached house for sale in Sea Holly Walk, Camber, Rye, East Sussex, TN31 — £350,000 • 3 bed • 2 bath • 915 ft²
3 bedroom semi-detached house for sale in Denham Way, Camber, Rye, TN31 — £250,000 • 3 bed • 1 bath • 979 ft²


















































































