Flexible layout with field views and large garden for family living.
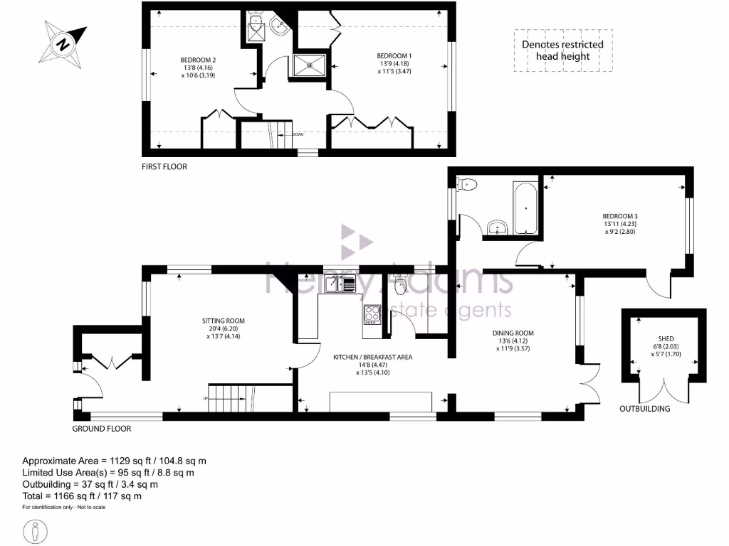
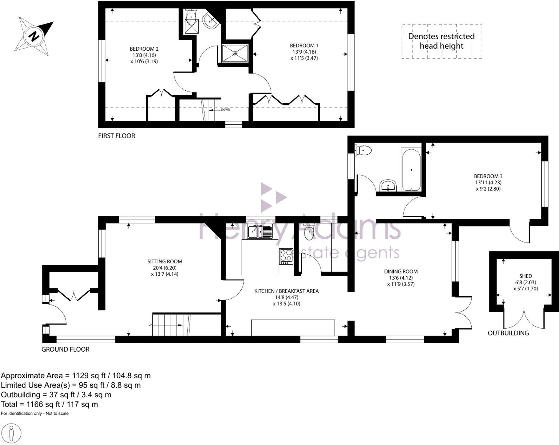
Detached three-bedroom home on sought-after private road
Set on a quiet private road in East Wittering, this detached three-bedroom home blends period character with practical family living. The sitting room has a double aspect and a traditional open fireplace; an adjoining reception room with patio doors opens directly to the garden, ideal for dining, play or a home office. A kitchen/breakfast room, utility area and ground-floor WC complete the main living level.
The former garage has been converted into a generous ground-floor bedroom with a modern bathroom, offering flexible ground-floor accommodation for guests or multigenerational living. Two double bedrooms and a family bathroom are on the first floor. The property backs onto open fields, giving a peaceful, green outlook; the long rear garden, while north-facing, still receives sun at the far end during much of the day.
Practical considerations: the house dates from the 1930s–1940s and shows some evidence of exterior wear that could benefit from light updating. Walls are cavity-built with assumed no insulation; double glazing is present but installation date is unknown. EPC rating D and council tax are above average. There is off-street parking on a private driveway but no integral garage following the conversion.
This freehold, no-forward-chain home will suit families seeking countryside-adjacent living with flexible accommodation, or buyers looking to add value by improving thermal efficiency and refreshing cosmetic finishes. Proximity to good local primary schools and town-fringe amenities strengthens everyday convenience.
3 bedroom detached house for sale in Sandpiper Walk, West Wittering, PO20 — £465,000 • 3 bed • 2 bath • 1109 ft²
3 bedroom detached house for sale in Barn Road, East Wittering, PO20 — £495,000 • 3 bed • 2 bath • 1854 ft²
3 bedroom semi-detached house for sale in Cambridge Avenue, West Wittering, PO20 — £415,000 • 3 bed • 1 bath • 872 ft²
3 bedroom detached house for sale in Peerley Road, East Wittering, West Sussex, PO20 — £450,000 • 3 bed • 2 bath • 1480 ft²
4 bedroom semi-detached house for sale in Acre Street, West Wittering, Chichester, PO20 — £685,000 • 4 bed • 2 bath • 1338 ft²
2 bedroom detached bungalow for sale in Field Road, East Wittering, West Sussex, PO20 — £395,000 • 2 bed • 1 bath • 893 ft²










































































